











MIRA PUSH — выдвижная корзина-сушка в эксклюзивном дизайне с плоским прутком и механизмом открывания от нажатия, предназначена для хранения разноплановой посуды в нижней базе мебельного гарнитура без ручек.
Эргономичная конструкция сетки сушки из пяти зон позволит вместить посуду разных размеров: тарелки диаметром 24 см, глубокие тарелки, средние тарелки диаметром до 20 см, блюдца небольшого диаметра, кружки. Зона для хранения кружек также позволит размещать посуду стопкой или габаритную посуду.
Дополнительные поперечные прутки сушки не только удерживают малые блюдца и тарелки, но и формируют противоположные ряды посуды так, чтобы они не мешались друг другу. Боковые выступающие прутки обеспечат ровное расположение посуды даже с малым диаметром.
Надёжные направляющие полного выдвижения с механизмом PUSH-TO-OPEN обеспечат стабильное, плавное выдвижение сушки.
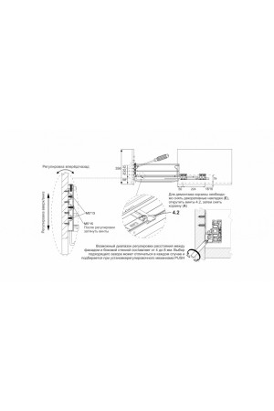
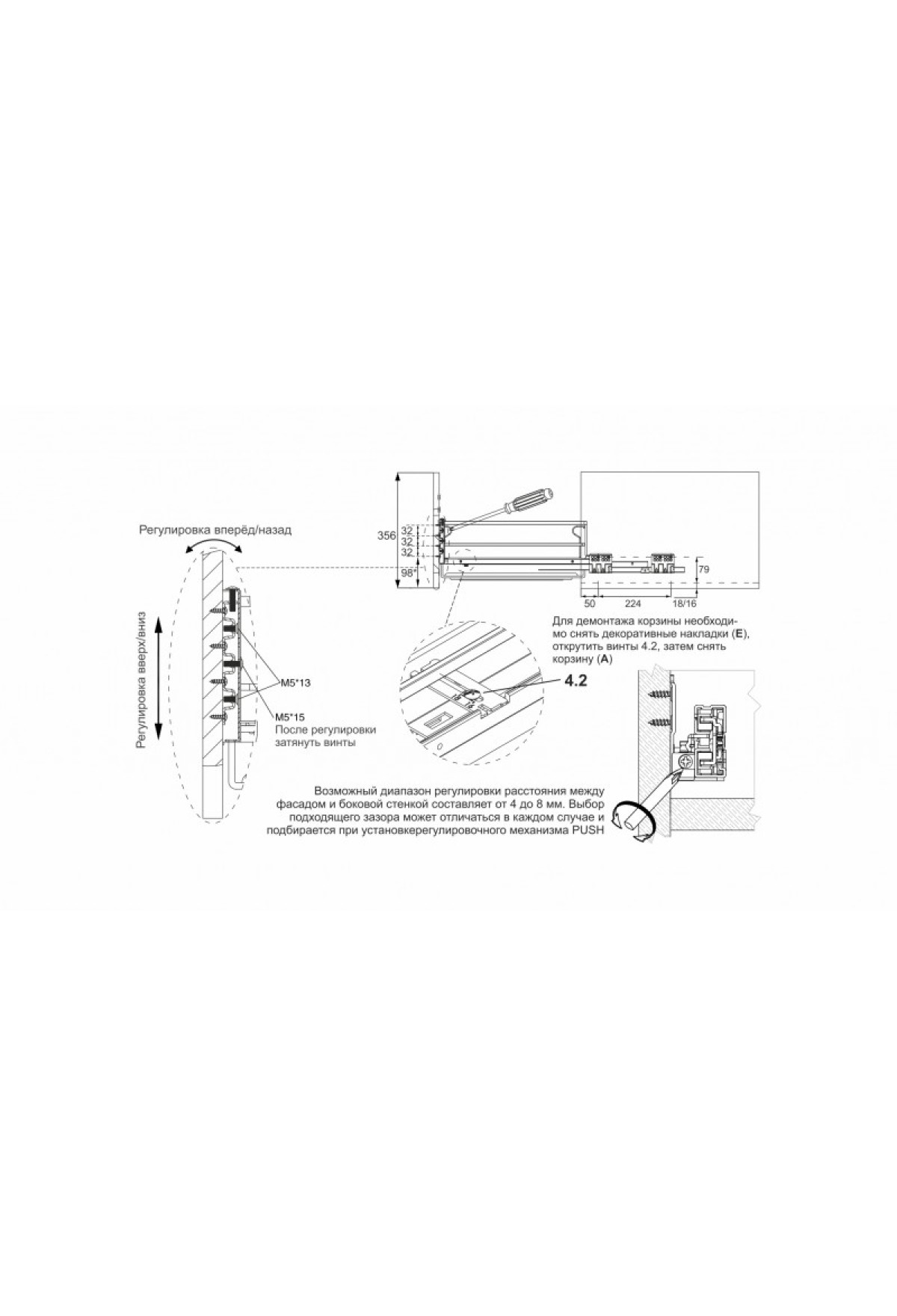
Специальный красный регулировочный винт в конструкции направляющих и риски на корпусе механизма позволят отрегулировать расстояние между фасадом и боковой стенкой мебельного короба в диапазоне от 4 до 8 мм, тем самым отрегулировать срабатывание механизма под конкретное мебельное изделие и выстроить все фасады в единую линию.
На направляющих также предусмотрен упор со смягчающим демпфером, выполняющий роль упора за вкладным фасадом и защищающий установку направляющих от повреждений.
Антивандальный механизм обережёт направляющие от поломки в случае некорректного открывания выдвижением фасада «на себя».
KRS06 надёжно устанавливается в корпус с толщиной плиты как 16 мм, так и 18 мм. Процесс монтажа прост и удобен: в зависимости от толщины плиты корпуса, выбрать на крепёжной пластине значение 16 или 18, далее закрепить винтами.
Для бесшумной работы изделия предусмотрены специальные демпфирующие вставки, прикрепить которые можно в места контакта корзины с выступами направляющих.
Качественное современное порошковое покрытие обладает повышенными прочностными и антикоррозийными свойствами.
Матовый графитовый цвет хорошо сочетается с кухнями тёмных оттенков и в тоже время может создать противоположность светлым фасадам.
Модель предложена в трёх вариантах ширины: 600, 800 и 900 мм.
Модель поставляется в надёжной фирменной упаковке с логотипом BOYARD.
Внимание, важная информация!
В комплекте с изделием поставляется специальный шаблон присадочных отверстий, который поможет точно определить место для крепления корзины.
Шаблон является дополнением к основной инструкции и позволяет легко и быстро нанести разметку для установки сетчатого наполнения в базу кухонного гарнитура.
- Сушка со съёмным поддоном для сбора капель из плотного и экологичного пластика
- Комплект направляющих
- Необходимый крепёж
- Инструкция и разметочный шаблон для быстрого и лёгкого монтажа
| */ Цвет | GRPH - Графитовый |
|---|
| Вес упаковки | 7.1 кг |
|---|---|
| Вид корзины | Корзины-сушки |
| Гарантированное количество циклов | 50 000 |
| Держатель фасада в комплекте | Да |
| Количество в упаковке | 1 |
| Комплектация поддонами | 1 поддон в комплекте |
| Линейка ERGOLINE | ESTETICA |
| Монтажная ширина | 800 мм |
| Наличие доводчика | Нет |
| Наличие толкателя | Есть |
| Несущая способность | до 40 кг |
| Объем упаковки | 0.0588 м.куб. |
| Сторона крепления направляющих | Боковое крепление |
| Тип выдвижения | Полное выдвижение |
| Форма прутка | Плоская |
-
На данный товар ещё нет отзывов.
-
Еще не было вопросов


