





SBDW11 – прямые боковые стенки (левая и правая) для сборки мебельного ящика системы выдвижения СТАРТ стандартной высоты 86 мм для формирования выдвижного мебельного ящика с минимальной высотой проёма 115 мм. Прямые боковины отличает от традиционных эстетически более красивая лаконичная форма, которая также позволяет экономить внутреннее пространство ящика. Толщина прямых боковин – 12,8 мм.
Боковины с держателями задней стенки и фиксаторами фасада выполняют защитно-декоративную функцию, а также соединяют между собой основные элементы выдвижного ящика: передняя фасадная панель, задняя стенка и дно. Кроме этого, боковины выполняют функцию регулировки фасада выдвижного ящика, функцию подвижного крепления выдвижного ящика к опорной направляющей скрытого монтажа DB8181, предварительно установленной на боковой стенке непосредственно мебельного изделия и защищают от непреднамеренного снятия при полном выдвижении механизма. Боковые стенки SBDW11, покрытые порошковой эмалью методом распыления с последующей сушкой при температуре 90 градусов, прослужат весь эксплуатационный срок, даже в условиях агрессивной кухонной среды. В комплект также входят декоративные заглушки с логотипом BOYARD.
Прямые боковины для стандартного ящика представлены в вариантах монтажной длины от 300 до 500 мм в трёх популярных цветах: графитовый, белый и серый.
Для сборки выдвижного мебельного ящика с помощью боковин SBDW11 необходимо самостоятельно изготовить фасад, заднюю стенку и дно ящика с учетом собственных пожеланий и потребностей по ширине и высоте готового ящика.
Высоту выдвижного мебельного ящика можно увеличить, используя прямоугольные рейлинги SBR09 и держатели рейлинга SBH40, в том количестве, ящик какой высоты вам необходим.Внимание, важная информация!
Групповая коробка боковых стенок SBDW11 включает 10 комплектов боковин, а также 10 отдельных пакетов с держателями фасада, декоративными заглушками и необходимым крепежом.
В случае приобретения боковых стенок в розницу следует обязательно помнить, что для каждого приобретённого комплекта боковин вам обязательно должны положить пакетик с комплектующими и крепежом. Обязательно проверяйте наличие необходимого количества пакетиков с комплектующими при получении товара, а также не забывайте о них при распаковке вашего заказа.
- Направляющие (левая и правая)
- Держатель задней стенки 86 мм (левый и правый) для стандартной высоты СТАРТ с прямыми боковинами
- Прямые боковые стенки для системы СТАРТ (левая и правая)
- Фиксатор фасада с саморезами (левый и правый)
- Заглушка
| */ Цвет | GR - Серый |
|---|
| В комплекте | Левая и правая |
|---|---|
| Вес упаковки | 9.516 кг |
| Количество в упаковке | 10 |
| Линейка | Система выдвижения СТАРТ раздельными комплектующими |
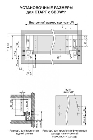
| Минимальная высота проёма | 115 мм |
| Монтажная длина | 300 мм |
| Наличие толкателя | Нет |
| Наличие толкателя и доводчика вместе | Нет |
| Объем упаковки | 0.01802 м.куб. |
| Тип конструкции направляющих | Системы выдвижения с двойными металлическими боковинами |
| Тип продукции | Комплектующие |
| Форма боковин | Прямая форма боковин |
| Цвет RAL | RAL7038 Agate grey |
-
На данный товар ещё нет отзывов.
-
Еще не было вопросов











