
Комплект SysLine S с демпфером Silent System
Навеска двери Вкладная навеска
Высота мм 375-1500мм
Ширина 410-800мм
Тип двери Горизонтальное движение
Толщина двери 19мм / 16мм
Толщина двери (мм) 16, 17, 18, 19
Вес двери (макс.) 15 кг
Количество дверей 2
Ширина двери (мин.) 410 мм
Количество полос 2
В комплект входят компоненты для 2-хдверного шкафа
Бесшумное и плавное закрывание раздвижных дверей
С встроенной регулировкой по высоте без дополнительного инструмента
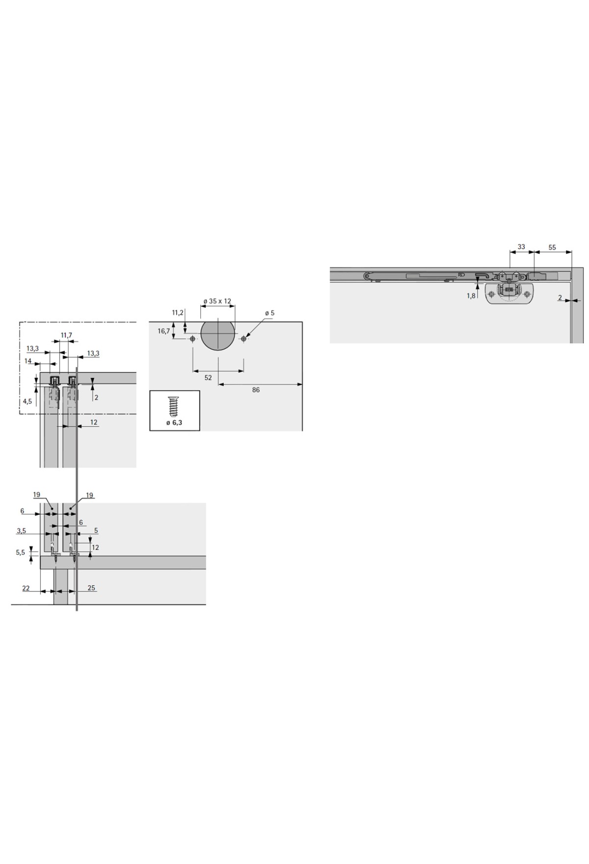
Состав комплекта:
2 ходовых элемента
2 ходовых элемента с демпфером Silent System
2 активатора для демпфера Silent System
2 упора
4 адаптера для деревянных дверей
2 нижних направляющих элемента для деревянных дверей
2 нижних направляющих элемента для дверей с алюминиевой рамой
2 междверных упора
-
На данный товар ещё нет отзывов.
-
Еще не было вопросов