
Благодаря системе KA 5740 двери после открывания задвигаются в корпус вдоль боковин и занимают по ширине порядка 50 мм.
Не мешают перемещению вдоль мебели как распашные фасады и не ограничивают доступ к внутреннему пространству как двери шкафов-купе.
Идеально подходит для бытовой и мультимедийной техники, бара, скрываемого рабочего места, ниш, кладовок и т.д.
Двери могут полностью скрыты в корпусе или выступать за его пределы. Это зависит от применяемых ручек и дизайна.
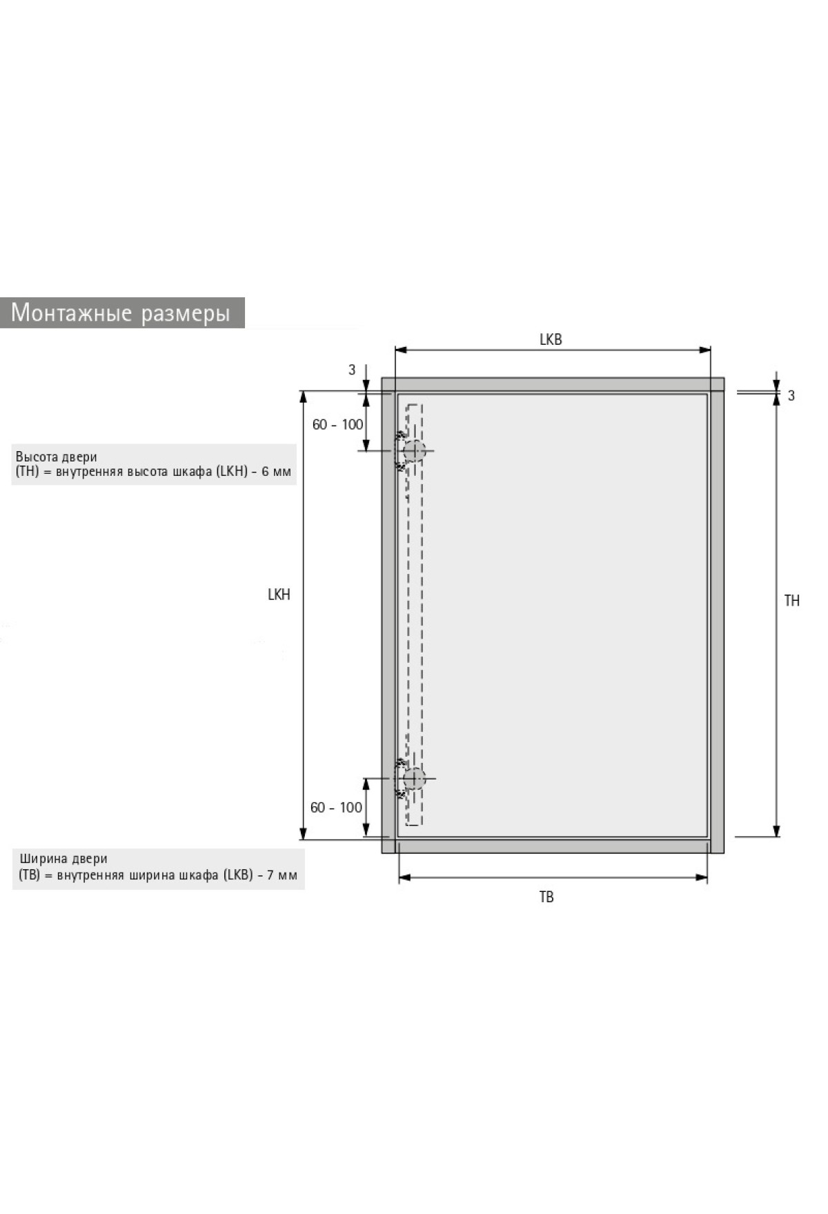
Количество механизмов и петель зависит от высоты двери.
Система оснащена защитой от самопроизвольного выкатывания дверей.
Петли четырехшарнирные приобретаются отдельно.
Для более стабильной работы в вертикальном положении рекомендуется использовать Комплект принадлежностей для фурнитуры KA 5740 Art. 9079526
В случае задвижения дверей в горизонтальной плоскости под верхнюю панель комплект является обязательным.
-
На данный товар ещё нет отзывов.
-
Еще не было вопросов