1588.03 р.
1720.37 р.
экономия 132.34 р.
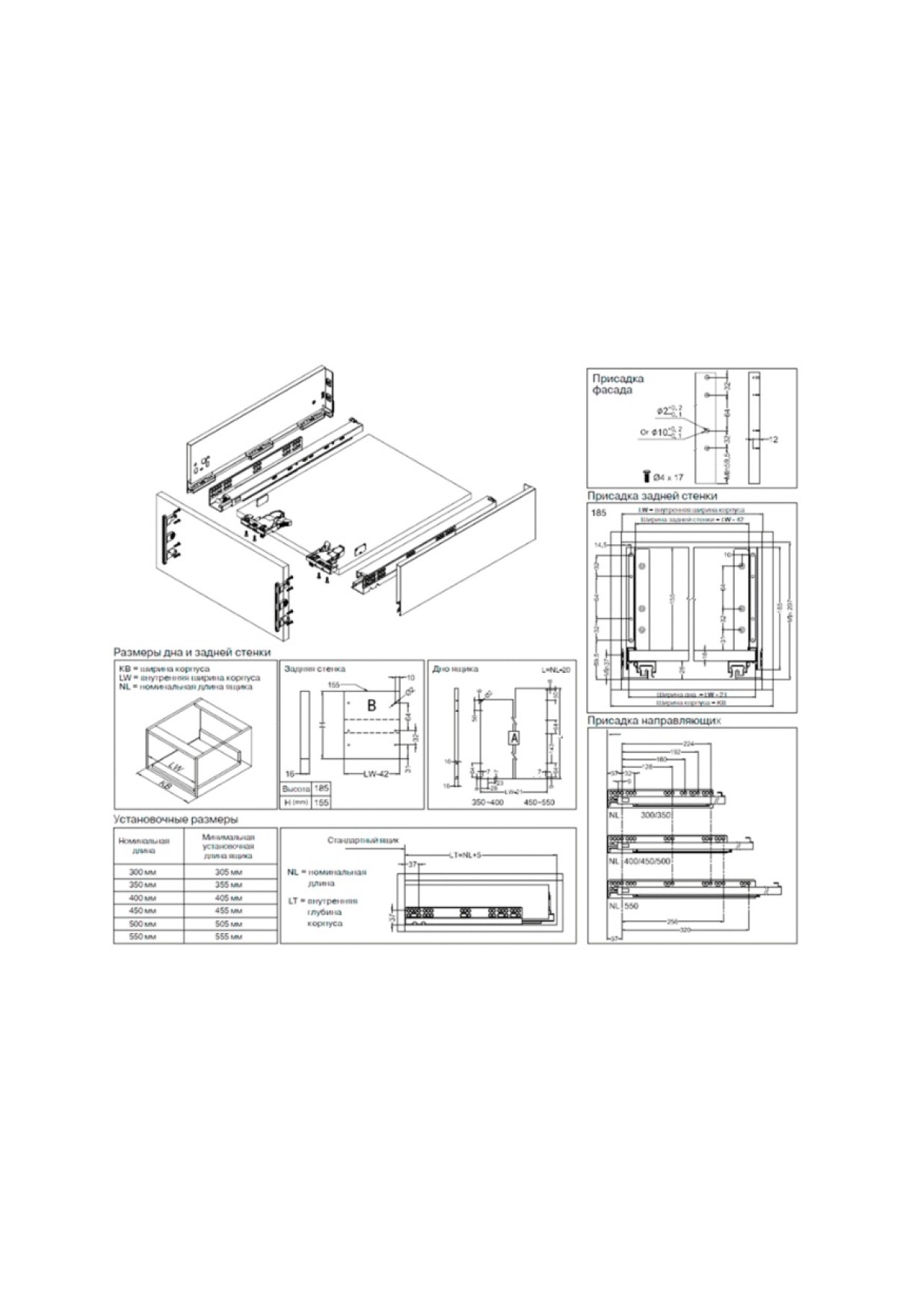
Современная мебель должна быть не только красивой, но и функциональной. Поэтому системы выдвижения постоянно модернизируются и улучшаются для обеспечения максимального комфорта использования. В последнее время большую популярность получили ящики с тонкой стенкой, которые не только позволяют максимально эффективно использовать внутреннее пространство ящика, но и отлично вписываются в дизайнерские идеи для мебельных изделий. Отличительной особенностью тонкостенных ящиков от стандартных ящиков с двойной стенкой является наличие целиковой боковины.
Данная система базируется на направляющих скрытого монтажа Firmax 3D Control, которые прошли сертификацию и рассчитаны на 60000 циклов открывания/закрывания при нагрузке в 40 кг. В зависимости от предпочтений Клиента ящик можно установить, как с механизмом плавного закрывания (Soft-Close), так и с механизмом открывания ящика при нажатии на фасад (Push-to-Open). Второй вариант будет идеальным решением в случае необходимости установки мебели без ручек.
-
На данный товар ещё нет отзывов.
-
Еще не было вопросов





