
Амортизатор: Есть
Монтажная длина: 400 мм
Тип выдвижения: Полное
Тип конструкции: Системы выдвижения с двойными металлическими боковинами
Тип движения: soft-closing (плавное закрывание)
Цвет: Серый
Цвет RAL: RAL7038 Agate grey
Несущая способность (на пару): до 40 кг
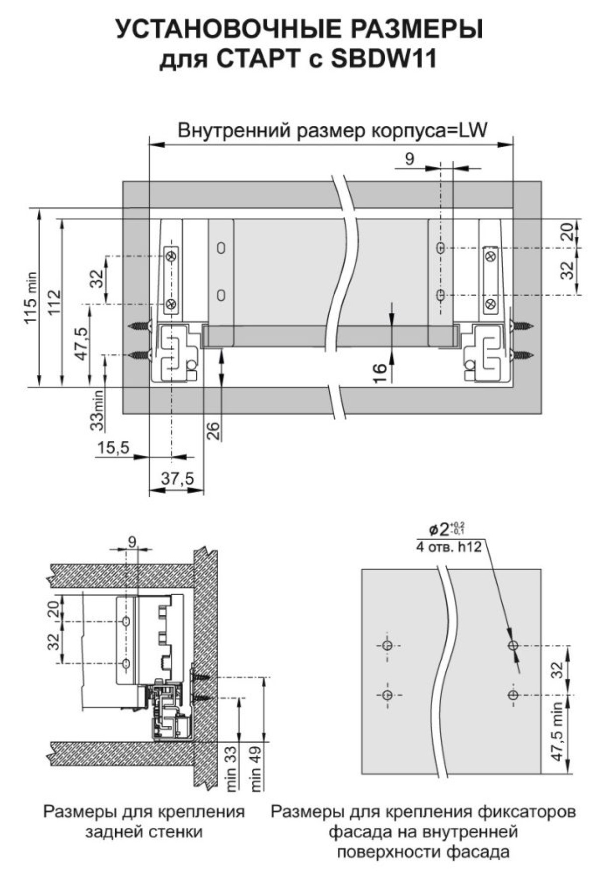
Минимальная высота проёма: 147 мм
Сегмент: Средний
Стандарт: ЕвроГОСТ
Количество циклов открывания/закрывания: 80 000
Артикул | 709462 |
---|
Бренд | BOYARD |
---|
В наличии | Да |
---|---|
Вариант открывания/закрывания | С доводчиком |
Вид комплектации ящика | Комплект ящика |
Высота боковины ящика, мм | 147 |
Длина, мм (Система выдвижения) | 400 |
Ликвидация Остатков | Да |
Нагрузка (на пару), кг (Направляющие) | 40 |
Направляющие (Выдвижные ящики) | В комплекте |
Система | Boyard Старт |
Страна производитель | Китай |
Тип выдвижения. | Полное |
тип товара (общий) | Выдвижной ящик с тонкими боковинами |
Цвет (Выдвижные ящики) | Серый |
Цветовая гамма | Серый |
-
На данный товар ещё нет отзывов.
-
Еще не было вопросов