
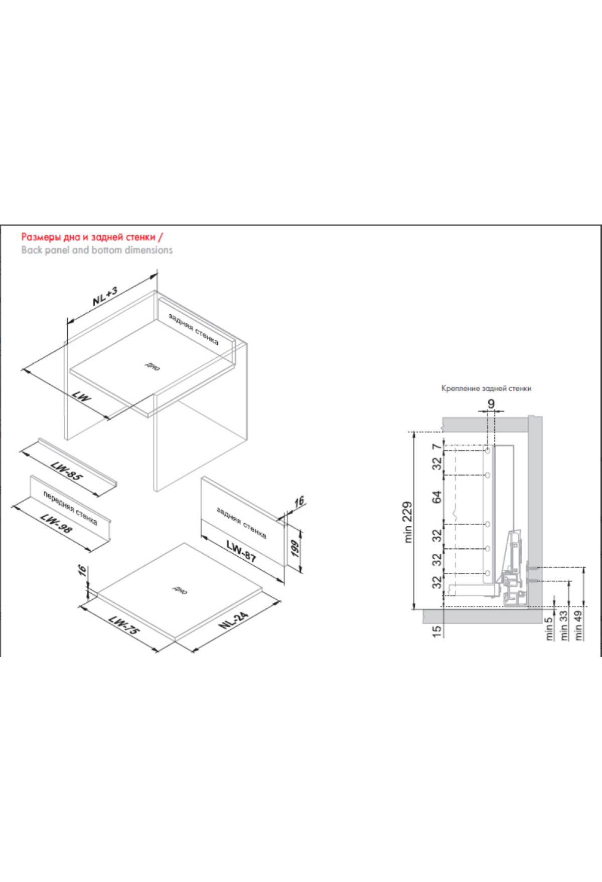
SBH44 – держатели передней стенки, предназначенные для надёжной фиксации передней стенки высокого внутреннего выдвижного мебельного ящика СТАРТ с традиционными боковинами с минимальной высотой проёма 229 мм. Держатели, сделанные из металла, характеризуются прочностью и долговечностью – они прослужат весь эксплуатационный срок даже в условиях агрессивной кухонной среды.
Комплект состоит из левого и правого держателя, а также необходимого крепежа.
Артикул | 709481 |
---|
Бренд | BOYARD |
---|
В наличии | Да |
---|---|
Вид комплектации ящика | Комплектующие |
Высота боковины ящика, мм | 167 |
Система | Boyard Старт |
Страна производитель | Китай |
тип товара (общий) | Держатель передней стенки высокий |
Цвет (Выдвижные ящики) | Серый |
Цветовая гамма | Серый |
-
На данный товар ещё нет отзывов.
-
Еще не было вопросов