Сканер штрихкода
Наведите камеру на штрихкод
Меню
Корзина 00.00 р.
    Поддержка
    • 8-800-700-65-88

    Мы работаем для вас ежедневно:

    ПН: 9:00 - 18:00

    ВТ: 9:00 - 18:00

    СР: 9:00 - 18:00

    ЧТ: 9:00 - 18:00

    ПТ: 9:00 - 18:00

    СБ: 9:00 - 18:00

    ВС: 9:00 - 18:00

    Без перерывов на обед и выходных дней!

    Поддержка в мессенджере
    MFT24
    • 8-800-700-65-88
    • Обратный звонок
      Заказать обратный звонок
      Нажимая на кнопку «Отправить», Вы даете согласие на обработку персональных данных.
    Каталог
      Поиск
      • Blog
      • Контакты
      • О нас
      • Доставка и оплата
        • Блог
      • 8-800-700-65-88
      • Обратный звонок
      Заказать обратный звонок
      Нажимая на кнопку «Отправить», Вы даете согласие на обработку персональных данных.
      MFT24
      • @Металлист
      • LV
      • Выдвижные корзины для кухни
      • Газовые лифты
      • Замки для мебели
      • Каталог
      • Крепежная фурнитура
      • Кухонные аксессуары
      • Мебельные крючки
      • Мебельные опоры
      • Мебельные петли
      • Мебельные ручки
      • Мерч и рекламная продукция
      • Навесы для шкафов
      • Поддоны для выдвижных ящиков и органайзеры
      • Полкодержатели
      • Системы выдвижения
      • Системы отталкивания и демпфирования
      • Скобяные изделия
      • Сушки для посуды
      • Трубы и штангодержатели
      • ✹ Инструменты
      • ✹ Комплектующие для кухни
      • ✹ Мебельная фурнитура
      • ✹ Отопление
      • ✹ Садовый инвентарь
      • ✹ Товары для дома
      • ✹ ТОВАРЫ МАРКЕТПЛЕЙСА
      • ✹ Дверная фурнитура
      • Torg
      Каталог
      • Комплектующие
        • Комплектующие для вентиляции
        • Комплектующие для пластиковых окон
      • Мебельная фурнитура
        • Консоли
        • Крепежные пластины мебельные
        • Кронштейны
        • Крючки вешалки
        • Мебельные колеса, ролики
        • Механизмы мебельные (трансформации, поворота)
        • Петли мебельные
        • Пластиковые опоры
        • Подвески мебельные
        • Соединители мебельные, захваты, зацепы
        • Стяжки
        • Уголки
      • Перфорированный крепеж
        • Крепежные пластины
        • Крепежные уголки
        • Опора бруса
        • Соединительные пластины
      • Скобяные изделия
        • DIN-рейки
        • Дверные крючки
        • Держатели для гардин
        • Завертки, комплектующие деревянных окон и теплиц
        • Задвижки
        • Замки
        • Краб-системы
        • Крепеж для гипсокартона
        • Кронштейны для радиаторов отопления
        • Накладки дверные
        • Петли
        • Пробой ушко
        • Пружины
        • Рожки обувные
        • Ручки
        • Скобы строительные
        • Угольники
      Раздел: 1. Лицевая фурнитура
      • Раздел: Крючки
      • Раздел: Ручки
      Раздел: 10. Опоры мебельные
      • Раздел: Опоры для корпусной мебели
      • Раздел: Опоры для столов
      • Раздел: Опоры колесные
      • Раздел: Опоры кухонные
      • Раздел: Подпятники
      Раздел: 11. Комплектующие для изготовления столов
      • Раздел: Вентиляционные решетки
      • Раздел: Фурнитура для столов
      Раздел: 12. Кроватные основания и комплектующие
      • Раздел: Основания для кроватей
      • Раздел: Подъемные механизмы и газлифты для кроватных оснований
      • Раздел: Фурнитура для кроватей
      Раздел: 13. Клей
      • Раздел: Дисперсия, клеи для древесины
      • Раздел: Клей двухкомпонентный
      • Раздел: Клей расплав
      Раздел: 14. Кромочные материалы
      • Раздел: Канты
      • Раздел: Кромка
      Раздел: 15. Пластики HPL
      • Раздел: CLEAN TOUCH
      • Раздел: Rediance
      • Раздел: SYNCHRO
      • Раздел: Дерево
      • Раздел: Камень
      • Раздел: Металлики
      • Раздел: Однотонники
      • Раздел: Фантазия
      Раздел: 16. Плитные материалы
      • Раздел: Компакт ламинат
      • Раздел: Плита ЛДСП
      • Раздел: Плита МДФ
      • Раздел: Профиль МДФ декоративный
      Раздел: 17. Фасады Раздел: 18. Рамочный профиль для фасадов
      • Раздел: Алюминиевый рамочный профиль
      • Раздел: Профиль МДФ
      • Раздел: Уплотнитель для алюминиевого рамочного профиля
      Раздел: 19. Замки для мебели
      • Раздел: Замки
      • Раздел: Ключи и декоративные накладки
      • Раздел: Магниты и защёлки
      Раздел: 2. Освещение и Электрокомпоненты
      • Раздел: Аксессуары
      • Раздел: Блоки питания
      • Раздел: Выключатели
      • Раздел: Профиль для светодиодной ленты
      • Раздел: Розетки и зарядные устройства Электронные системы управления
        • Раздел: Розетки и зарядные устройства
      • Раздел: Светильники
      • Раздел: Светодиодная лента
      • Раздел: Устройства управления
      Раздел: 20. Крепежная и соединительная фурнитура
      • Раздел: Анкерный крепеж
      • Раздел: Гвозди
      • Раздел: Дюбель
      • Раздел: Заглушки
      • Раздел: Кляймеры
      • Раздел: Крепеж сантехнический
      • Раздел: Метрический крепеж
      • Раздел: Навесы кухонные
      • Раздел: Перфокрепеж
      • Раздел: Полкодержатели
      • Показать все
      Раздел: 21. Инструменты и оборудование
      • Раздел: Биты
      • Раздел: Зажимной инструмент
      • Раздел: Измерительный инструмент
      • Раздел: Кондукторы и шаблоны
      • Раздел: Наборы инструментов
      • Раздел: Органайзеры и кейсы
      • Раздел: Отвертки и ключи
      • Раздел: Пилки для электролобзика
      • Раздел: Разное
      • Раздел: Режущий инструмент
      • Показать все
      Раздел: 22. Трубы и элементы крепления
      • Раздел: Комплектующие для труб
      • Раздел: Система Joker и UNO
      • Раздел: Трубы
      Раздел: 23. Упаковочный материал
      • Раздел: Скотч
      • Раздел: Стрейч-пленка
      • Раздел: Упаковочная лента
      Раздел: 24. Реставрационные материалы
      • Раздел: Воск мебельный и напольный
      • Раздел: Карандаши и маркеры
      • Раздел: Лак
      • Раздел: Материалы для кожи
      • Раздел: Шпатлевка мебельная
      • Раздел: Штрихи и ретуши
      Раздел: 25. Механизмы трансформации Раздел: 26. Аксессуары для ванных комнат Раздел: 27. Товары для сада и отдыха Раздел: 28. Декор
      • Раздел: Шпон натурального камня
      Раздел: 29. Рекламная продукция Раздел: 3. Гардеробные системы и системы хранения
      • Раздел: Гардеробная система
        • Раздел: Гардеробная система
      • Раздел: Домашнее хранение
      • Раздел: Каркасно-модульная система "ЛОФТ"
      • Раздел: Наполнение для шкафов
        • Раздел: Выдвижные штанги и вешала
        • Раздел: Гладильные доски
        • Раздел: Зеркала
        • Раздел: Пантографы
        • Раздел: Сетчатые полки
        • Раздел: Штанги и комплектующие
      • Раздел: Стеллажная система
      Раздел: 4. Столешницы и стеновые панели
      • Раздел: Кромка для столешниц
        • Раздел: Classic
        • Раздел: Premium
        • Раздел: Premium+
        • Раздел: Special Edition
        • Раздел: Standart-Pro
        • Раздел: Universal
      • Раздел: Мебельные щиты
        • Раздел: Classic
        • Раздел: Premium
        • Раздел: Premium+
        • Раздел: Special Edition
        • Раздел: Standart-Pro
        • Раздел: Universal
      • Раздел: Планки и комплектующие
      • Раздел: Пристеночные бортики
      • Раздел: Столешницы
        • Раздел: Коллекция столешниц Classic
        • Раздел: Коллекция столешниц Premium
        • Раздел: Коллекция столешниц Premium+
        • Раздел: Коллекция столешниц Special Edition
        • Раздел: Коллекция столешниц Standart-Pro
        • Раздел: Коллекция столешниц Universal
      Раздел: 5. Кухонные мойки и смесители
      • Раздел: Аксессуары для моек
        • Раздел: Измельчители отходов
        • Раздел: Корзинки и доски для кухонных моек
        • Раздел: Сливная арматура и фильтры
      • Раздел: Дозаторы
      • Раздел: Кухонные мойки
        • Раздел: Гранитные мойки
        • Раздел: Мойки из нержавеющей стали
      • Раздел: Смесители
      Раздел: 6. Кухонное наполнение и аксессуары
      • Раздел: Барные трубы D50 и аксессуары
      • Раздел: Выдвижные корзины
      • Раздел: Контейнеры для отходов
      • Раздел: Посудосушители, лотки
      • Раздел: Разное/кухонные аксессуары
      • Раздел: Рейлинги и комплектующие
      • Раздел: Цоколь кухонный
      Раздел: 7. Механизмы для открывания фасадов
      • Раздел: Амортизаторы
      • Раздел: Газовые лифты
      • Раздел: Кронштейны механические
      • Раздел: Петли
      • Раздел: Подъемные механизмы
      Раздел: 8. Системы выдвижения
      • Раздел: Выдвижные ящики
        • Раздел: AXIS PRO
        • Раздел: Boyard СТАРТ
        • Раздел: Firmax Newline
        • Раздел: Firmax Slimline
        • Раздел: Firmax Smartline
        • Раздел: GRASS DWD XP
        • Раздел: GRASS Nova Pro
        • Раздел: Hafele Matrix Box
        • Раздел: Hafele Moovit
        • Раздел: Hafele Moovit MX
        • Раздел: Hettich ArciTech
        • Раздел: Hettich AvanTech You
        • Раздел: Hettich Inno Tech
        • Раздел: Hettich Inno Tech Atira
        • Раздел: Modern Box
      • Раздел: Металлобоксы
      • Раздел: Направляющие
        • Раздел: Направляющие скрытого монтажа
        • Раздел: Пластиковые направляющие
        • Раздел: Роликовые направляющие
        • Раздел: Шариковые направляющие
      Раздел: 9. Шкафные системы: раздвижные и складные двери
      • Раздел: Классические двери-купе Аристо
      • Раздел: ПРОФИАЛ
      • Раздел: Прочие комплектующие
      • Раздел: Системы GTV
      • Раздел: Системы Hafele
        • Раздел: Hangroller 50
        • Раздел: Slido Classic
        • Раздел: Slido Eclipse
        • Раздел: Фурнитура для поворотных дверей
      • Раздел: Системы Hettich
        • Раздел: Slide Line
        • Раздел: SysLine
        • Раздел: Top Line
        • Раздел: Wing Line
        • Раздел: КА 5740
      • Раздел: Системы Аристо
        • Раздел: Grace Aristo
        • Раздел: Nova Aristo
        • Раздел: QB
        • Раздел: Slim line, Slim Max
        • Раздел: Система 4 в 1
        • Раздел: Система БРАВО
        • Раздел: Система СТАНДАРТ
        • Раздел: Система ЭКО
      • Раздел: СКМ и Дабл, CT-147 и CT-148
      Мебельная фурнитура Перфорированный крепеж Скобяные изделия
      • Петли
        • Петли-стрелы
      • Ручки
      Метизы Стяжки
      Амортизаторы и толкатели Магнитные держатели
      Замки
      Трубы Штангодержатели
      ✹ Автомобильный инструмент
      • ✹ Аксессуары автомобильные
        • ✹ Антибуксы
        • ✹ Ареометры
        • ✹ Воронки
        • ✹ Держатели телефонов и планшетов
        • ✹ Канистры для топлива
        • ✹ Пакеты для шин
        • ✹ Провода стартовые
        • ✹ Резинки багажные
        • ✹ Ремни багажные
        • ✹ Салфетки и губки
        • ✹ Тросы буксировочные
        • ✹ Удобства в автомобиле
        • ✹ Щетки стеклоочистителя
      • ✹ Домкраты
        • ✹ Домкраты гидравлические бутылочные
        • ✹ Домкраты гидравлические подкатные
        • ✹ Домкраты механические бутылочные
        • ✹ Домкраты реечные
        • ✹ Домкраты ромбовые
        • ✹ Домкраты электрогидравлические
      • ✹ Компрессоры автомобильные
      • ✹ Лебедки автомобильные
      • ✹ Масленки
      • ✹ Мебель гаражная
      • ✹ Насосы гидравлические
      • ✹ Пневмоинструмент
        • ✹ Гайковерты пневматические
        • ✹ Дрели пневматические
        • ✹ Заклепочники пневматические
        • ✹ Краскораспылители
        • ✹ Молотки пневматические
        • ✹ Нейлеры пневматические
        • ✹ Пистолеты пневматические
        • ✹ Пневмоинструмент (аксессуары)
        • ✹ Степлеры пневматические
        • ✹ Трещотки пневматические
        • ✹ Хоппер ковши
        • ✹ Шлифовальные машины
        • ✹ Шуруповерты пневматические
      • ✹ Поддоны для сбора масла
      • ✹ Подставки под машину регулируемые
      • Показать все
      ✹ Измерительный инструмент
      • ✹ Гидроуровни
      • ✹ Дальномеры
      • ✹ Измерительные колеса
      • ✹ Линейки
      • ✹ Микрометры
      • ✹ Рулетки
      • ✹ Рулетки геодезические
      • ✹ Угольники
      • ✹ Уровни
        • ✹ Уровни алюминиевые
        • ✹ Уровни пластмассовые
      • ✹ Уровни лазерные
        • ✹ Аксессуары для лазерных уровней
      • Показать все
      ✹ Крепежный инструмент
      • ✹ Гвозди для мебельного степлера
      • ✹ Дюбели
      • ✹ Дюбель-гвозди
      • ✹ Заклепки
      • ✹ Заклепочники
      • ✹ Крепеж перфорированный
        • ✹ Анкеры регулируемые
        • ✹ Кляймеры
        • ✹ Крабы соединительные
        • ✹ Ленты
        • ✹ Мебельный крепеж
        • ✹ Опоры бруса
        • ✹ Пластины
        • ✹ Подвесы
        • ✹ Проушины прямы
        • ✹ Проушины угловые
        • ✹ Уголки
      • ✹ Кронштейны
        • ✹ Кронштейны декоративные
        • ✹ Кронштейны угловые
        • ✹ Кронштейны усиленные
      • ✹ Наборы крепежных изделий
      • ✹ Проволока
        • ✹ Проволока из нержавеющей стали
        • ✹ Проволока с ПВХ покрытием
        • ✹ Проволока стальная оцинкованная
      • ✹ Саморезы
      • Показать все
      ✹ Отделочный инструмент
      • ✹ Аксессуары для плиткорезов
      • ✹ Валики
        • ✹ Бюгели
        • ✹ Валики игольчатые
        • ✹ Валики прижимные
        • ✹ Валики с ручкой
        • ✹ Шубки для валиков
      • ✹ Ведра строительные
      • ✹ Гладилки
      • ✹ Захваты строительные
      • ✹ Инструмент для затирки швов
      • ✹ Инструмент для нанесения декоративных покрытий
      • ✹ Инструмент по газо и пенобетону
      • ✹ Инструмент по гипсокартону
      • ✹ Карандаши строительные
      • Показать все
      ✹ Прочий инструмент
      • ✹ Горелки газовые
      • ✹ Замки
        • ✹ Навесные
        • ✹ Накладные и врезные
        • ✹ Тросовые и цепные
      • ✹ Изделия канатно-веревочные
        • ✹ Веревки
        • ✹ Канаты
        • ✹ Наборы шпагатов
        • ✹ Нити
        • ✹ Фалы
        • ✹ Шнуры
        • ✹ Шпагаты
      • ✹ Инструмент для пайки
        • ✹ Выжигатели по дереву
        • ✹ Материалы и принадлежности для пайки
        • ✹ Наборы для пайки
        • ✹ Наборы пинцетов
        • ✹ Пасты
        • ✹ Паяльники электрические
        • ✹ Припой
      • ✹ Инструмент для прочистки труб
      • ✹ Клеевые пистолеты
      • ✹ Клеевые стержни
      • ✹ Лампы паяльные, керосиновые
      • ✹ Лестницы
      • ✹ Лупы
      • Показать все
      ✹ Режущий инструмент
      • ✹ Болторезы и труборезы
        • ✹ Болторезы
        • ✹ Труборезы
      • ✹ Буры и насадки для перфоратора
        • ✹ Буры
        • ✹ Коронки
        • ✹ Насадки
      • ✹ Диски алмазные отрезные
      • ✹ Диски пильные
      • ✹ Диски универсальные
      • ✹ Круги и диски абразивные
        • ✹ Круги абразивные на ворсовой подложке
        • ✹ Круги и диски полировальные
        • ✹ Круги лепестковые радиальные (с оправкой)
        • ✹ Круги лепестковые торцевые
        • ✹ Круги отрезные и зачистные армированные
        • ✹ Круги шлифовальные гибкие
        • ✹ Круги шлифовальные для точила
        • ✹ Треугольники абразивные на ворсовой подложке
      • ✹ Ленты абразивные (для шлифмашин)
      • ✹ Насадки для многофункционального инструмента (МФИ)
      • ✹ Ножи
        • ✹ Лезвия для ножей
        • ✹ Ножи для резки напольных покрытий
        • ✹ Ножи для резки обоев
        • ✹ Ножи для резки теплоизоляции
        • ✹ Ножи кухонные
        • ✹ Ножи строительные
        • ✹ Ножи туристические
      • ✹ Ножи для электрических рубанков
      • Показать все
      ✹ Силовое оборудование
      • ✹ Аккумуляторный инструмент
        • ✹ Батареи аккумуляторные
        • ✹ Гайковерты ударные аккумуляторные
        • ✹ Дрели-шуруповерты аккумуляторные
        • ✹ Зарядные устройства
        • ✹ Лобзики аккумуляторные
        • ✹ Машинки для укладки плитки
        • ✹ МФИ аккумуляторные
        • ✹ Отвертки аккумуляторные
        • ✹ Перфораторы аккумуляторные
        • ✹ Сабельные пилы аккумуляторные
        • ✹ УШМ аккумуляторные
        • ✹ Циркулярные пилы аккумуляторные
        • ✹ Шлифовальные машины аккумуляторные
      • ✹ Аксессуары для бензорезов
      • ✹ Аксессуары для бетоносмесителей
        • ✹ Венцы
        • ✹ Ремни
        • ✹ Чехлы
        • ✹ Шестерни
      • ✹ Аксессуары для виброплит
      • ✹ Аксессуары для генераторов
      • ✹ Аксессуары для измельчителей садовых
        • ✹ Ножи сменные
      • ✹ Аксессуары для моечных машин высокого давления
      • ✹ Аксессуары для мотобуров
        • ✹ Удлинители для шнеков
        • ✹ Шнеки
      • ✹ Аксессуары для насосов
      • ✹ Аксессуары для сварки
        • ✹ Горелки сварочные
        • ✹ Держатели электродов
        • ✹ Клеммы
        • ✹ Наконечники токосъемные
        • ✹ Подающие ролики
        • ✹ Сопла газовые
        • ✹ Фиксаторы магнитные
        • ✹ Цангодержатели
        • ✹ Электроды
      • Показать все
      ✹ Слесарный инструмент
      • ✹ Биты
        • ✹ Адаптеры и переходники
        • ✹ Биты наборы
        • ✹ Биты с торцевыми головками
      • ✹ Бокорезы, кусачки
      • ✹ Воротки, удлинители, переходники
        • ✹ Воротки
        • ✹ Переходники
        • ✹ Шарниры карданные
      • ✹ Выколотки
      • ✹ Головки сменные
        • ✹ Головки многоразмерные
        • ✹ Головки с битой
        • ✹ Головки свечные
        • ✹ Головки торцевые
        • ✹ Головки ударные
        • ✹ Головки удлиненные
      • ✹ Длинногубцы
        • ✹ Длинногубцы изогнутые
        • ✹ Длинногубцы прямые
        • ✹ Длинногубцы, двойной рычажный механизм
      • ✹ Зажимы с фиксатором
      • ✹ Зубила
      • ✹ Инструменты для зачистки и обжима
      • ✹ Киянки
        • ✹ Киянки деревянные
        • ✹ Киянки резиновые
      • Показать все
      ✹ Столярный инструмент
      • ✹ Верстаки
      • ✹ Долота и стамески
        • ✹ Долота-стамески
        • ✹ Долота-стамески наборы
        • ✹ Стамески
        • ✹ Стамески наборы
      • ✹ Кирки
      • ✹ Ломы и гвоздодеры
        • ✹ Гвоздодеры
        • ✹ Ломы строительные
      • ✹ Ножовки
        • ✹ Ножовки по гипсокартону
        • ✹ Ножовки по дереву
        • ✹ Ножовки по пенобетону
      • ✹ Пилы
      • ✹ Резцы по дереву
      • ✹ Струбцины
        • ✹ Струбцины F-образные
        • ✹ Струбцины G-образные
        • ✹ Струбцины клещеобразные
        • ✹ Струбцины ленточные
        • ✹ Струбцины угловые
        • ✹ Стурбцины быстрозажимные
      • ✹ Стусла
        • ✹ Пилы для стусла
        • ✹ Полотна для прецизионного стусла
        • ✹ Стусла пластиковые
        • ✹ Стусла прецизионные
      • ✹ Топоры и колуны
        • ✹ Колуны
        • ✹ Рукоятки для колунов
        • ✹ Топорища
        • ✹ Топоры
      ✹ Бокалодержатели ✹ Выкатные корзины
      ✹ Лотки для столовых приборов ✹ Сушки для посуды
      ✹ Амортизаторы и толкатели ✹ Крепежная фурнитура
      • ✹ Кронштейны для полок
      ✹ Крючки мебельные ✹ Мебельные замки
      ✹ Навесы мебельные ✹ Направляющие мебельные ✹ Опоры для столов ✹ Опоры колесные
      ✹ Опоры мебельные ✹ Петли мебельные
      • ✹ Петли для стекла
      • ✹ Петли карточные
      • ✹ Петли мебельные четырехшарнирные
      • ✹ Петли секретерная
      ✹ Подъемные механизмы ✹ Ручки мебельные
      • ✹ Ручки мебельные-кнопки
      - Радиаторы отопления
      • ЗАЩИТНЫЕ ЭКРАНЫ И КРОНШТЕЙНЫ ДЛЯ РАДИАТОРОВ
      • КОМПЛЕКТУЮЩИЕ ДЛЯ РАДИАТОРОВ ОТОПЛЕНИЯ
      БАКИ РАСШИРИТЕЛЬНЫЕ ВОЗДУХООТВОДЧИКИ И ГРУППЫ БЕЗОПАСНОСТИ ТЕПЛЫЙ ПОЛ (ЭЛЕКТРИЧЕСКИЙ) УЗЛЫ ПОДКЛЮЧЕНИЯ, ВЕНТИЛИ, РЕГУЛЯТОРЫ ТЕМПЕРАТУРЫ
      ✹ Адаптеры, переходники
      • ✹ Адаптеры алюминиевые
      • ✹ Адаптеры латунные
      • ✹ Адаптеры пласмассовые
      • ✹ Муфты алюминиевые
      • ✹ Муфты латунные
      • ✹ Муфты пластмассовые
      • ✹ Переходники латунные
      • ✹ Переходники пластмассовые
      • ✹ Разветвители латунные
      • ✹ Разветвители пластмассовые
      • Показать все
      ✹ Баки ✹ Буры садовые
      • ✹ Буры лопастные
      • ✹ Буры шнековые
      • ✹ Удлинители
      ✹ Ведра, тазы оцинкованные
      • ✹ Ведра оцинкованные
      • ✹ Тазы оцинкованные
      ✹ Вилы
      • ✹ Вилы садово-огородные
      • ✹ Вилы сенные
      ✹ Воздуходувки
      • ✹ Воздуходувки аккумуляторные
      • ✹ Воздуходувки бензиновые
      ✹ Газонокосилки
      • Газонокосилки аккумуляторные
      • ✹ Газонокосилки аккумуляторные
      • ✹ Газонокосилки бензиновые
      • ✹ Газонокосилки электрические
      • ✹ Ножи для газонокосилок
      ✹ Грабли
      • ✹ Грабли веерные
      • ✹ Грабли классические
      ✹ Дровоколы ✹ Душ садовый ✹ Зонты ✹ Измельчители ✹ Кашпо
      • ✹ Вкладыши
      • ✹ Кашпо подвесные
      • ✹ Кашпо пристенные
      • ✹ Кронштейны для кашпо
      • ✹ Цепочки для кашпо
      ✹ Колеса промышленные ✹ Косы
      • ✹ Комплектующие для кос
      • ✹ Косы-литовки
      • ✹ Косы-секачи
      • ✹ Косы-серпаны
      ✹ Культиваторы, аэраторы ✹ Ледоступы, ледянки
      ✹ Лейки ✹ Лопаты
      • Лопаты автомобильные, походные
      • ✹ Лопаты автомобильные, походные
      • ✹ Лопаты без черенка
      • ✹ Лопаты с деревянным черенком
      • ✹ Лопаты с металлическим черенком
      • ✹ Лопаты с фибергласовым черенком
      ✹ Мачете ✹ Мебель для пикника ✹ Мелкий садовый инструмент
      • ✹ Конусы посадочные
      • ✹ Корнеудалители
      • ✹ Мотыжки
      • ✹ Наборы мелкого садового инструмента
      • ✹ Рыхлители
      • ✹ Серия Classic
      • ✹ Серия Connect
      • ✹ Серия Era
      • ✹ Серия Ergo
      • ✹ Серия Flower green
      • Показать все
      ✹ Метлы, веники
      • ✹ Веники
      • ✹ Метлы
      ✹ Мотыги, полольники, кетмени
      • ✹ Кетмени
      • ✹ Мотыги из нержавеющей стали
      • ✹ Мотыги стальные
      • ✹ Полольники
      ✹ Насадки для полива
      • ✹ Дождеватели
      • ✹ Наборы
      • ✹ Пистолеты - распылители
      • ✹ Распылители
      • ✹ Распылители на штанге
      ✹ Настенные держатели ✹ Ножи садовые
      • ✹ Копулировочные
      • ✹ Универсальные
      ✹ Ножницы садовые
      • ✹ Газонные ножницы
      • ✹ Кусторезы
      • ✹ Садовые ножницы и кусторезы аккумуляторные
      ✹ Ножовки, пилы садовые ✹ Одежда, защита рук
      • ✹ Перчатки хозяйственные
      • ✹ Плащи-дождевики
      • ✹ Рукавицы
      • ✹ Садовые перчатки
      • ✹ Шапки
      ✹ Опрыскиватели
      • ✹ Опрыскиватели аккумуляторные
      • ✹ Опрыскиватели бензиновые
      • ✹ Опрыскиватели ручные
      ✹ Парники, теплицы
      • ✹ Комплектующие к парникам
      • ✹ Парники
      ✹ Пленки, укрывные материалы
      • ✹ Защита
      • ✹ Колышки
      • ✹ Пленка
      • ✹ Укрывной материал
      ✹ Плоскорезы
      ✹ Приготовление пищи
      • ✹ Аксессуары
      • ✹ Барбекю
      • ✹ Коптильни
      • ✹ Мангалы
      • ✹ Решетки-гриль
      • ✹ Топливо
      • ✹ Шампуры
      ✹ Приспособления для рассады ✹ Садовые аксессуары ✹ Садовые ограждения
      • ✹ Арки садовые
      • ✹ Бордюрные ленты
      • ✹ Бордюры садовые
      • ✹ Заборы декоративные
      • ✹ Кустодержатели
      • ✹ Опоры для поддержки веток деревьев
      • ✹ Опоры для растений
      • ✹ Опоры для цветов
      • ✹ Поддержки для растений
      • ✹ Решетки заборные
      • Показать все
      ✹ Секаторы
      • ✹ Для топиария и бонсай
      • ✹ Прививочные
      • ✹ Секаторы аккумуляторные
      • ✹ Цветочные
      ✹ Серпы ✹ Сетки газонные ✹ Скарификаторы ✹ Снегоуборочный инвентарь
      • ✹ Водосгоны для пола
      • ✹ Движки, скреперы
      • ✹ Ледорубы, скребки
      • ✹ Лопаты снеговые автомобильные
      • ✹ Лопаты снеговые без черенка
      • ✹ Лопаты снеговые с черенком
      ✹ Сучкорезы
      • ✹ Прямого реза
      • ✹ С наковальней
      • ✹ Штанговые
      ✹ Таймеры для полива ✹ Тачки, тележки, носилки
      • ✹ Колеса и камеры для тачки
      • ✹ Носилки
      • ✹ Тачки
      • ✹ Тележки
      ✹ Товары для пикника
      • ✹ Аккумуляторы холода
      • ✹ Бутылки
      • ✹ Наборы посуды
      • ✹ Стаканы
      • ✹ Термосумки
      ✹ Триммеры
      • ✹ Аксессуары для триммеров
      • ✹ Диски для триммеров
      • ✹ Катушки для триммеров
      • ✹ Леска для триммеров
      • ✹ Триммеры аккумуляторные
      • ✹ Триммеры бензиновые
      • ✹ Триммеры электрические
      ✹ Умывальники ✹ Цветочные горшки ✹ Черенки, рукоятки
      • ✹ Рукоятки
      • ✹ Черенки без резьбы
      • ✹ Черенки с резьбой
      ✹ Шланги, катушки
      • ✹ Катушки для шлангов
      • ✹ Шланги
      ✹ Декор для дома
      • Вазы
      • Предметы декора для интерьера
        • Фоторамки
        • Шкатулки и держатели для украшений
      • ✹ Аромадиффузоры и свечи
      • ✹ Искусственные цветы и сухоцветы
      • ✹ Часы
      ✹ Домашнее хранение
      • ✹ Пластиковые короба и корзины
      ---МП__ОФИСНЫЕ КОЛЕСА Детские товары
      • Безопасность ребенка
        • Защитный уголок
      Дом и сад
      • Аксессуары для бани и ванной
        • Держатель для полотенец
        • Держатель для туалетной бумаги
        • Крючок для ванной
      • Аксессуары для приготовления пищи
        • Держатель кухонный
      • Вешалки для одежды
        • Крючок для одежды
      • Декор и интерьер
        • Стоппер для двери
        • Цифры для двери
      • Хранение вещей
        • Органайзер для вещей
      • Шторы и карнизы
        • Аксессуар для штор
      Канцелярские товары
      • Канцелярия
        • Подставка для ручек, карандашей
      Красота и гигиена
      • Инструменты для макияжа, маникюра, бани и солярия
        • Брашинг
        • Зеркало косметическое
        • Маникюрные щипцы
        • Набор инструментов для маникюра
        • Ножницы маникюрные
        • Пилка для маникюра
      Мебель
      • Мебельная фурнитура и комплектующие
        • Держатель для полки
      Строительство и ремонт
      • Арматура и аксессуары для сантехники
        • Фильтр для душа
      • Грузоподъемное оборудование
        • Колесо промышленное
      • Крепеж и фурнитура
        • Комплектующие для москитных сеток
      • Ручки, замки и фурнитура
        • Газлифт мебельный
        • Задвижка
        • Замок
        • Мебельное колесо
        • Направляющие
        • Ножка для мебели
        • Петля мебельная
        • Протектор для мебели
        • Ручка мебельная
      • Смесители и душевые системы
        • Лейка для душа
        • Шланг для душа
      Электроника
      • Кронштейны
        • Кронштейн для монитора
        • Кронштейн для ТВ
        • Подставка для ноутбука
      ✹ Глазки дверные ✹ Дверные доводчики
      • ✹ Гидравлические дверные доводчики
      • ✹ Дверные доводчики с скользящей тягой
      • ✹ Пружинные и пневматические дверные доводчики
      ✹ Дверные замки, механизмы
      • ✹ Задвижки для межкомнатных дверей
      • ✹ Замки врезные на деревянные двери
      • ✹ Замки врезные на металлические двери
      • ✹ Замки межкомнатные
      • ✹ Замки накладные для деревянных дверей
      • ✹ Замки накладные на металлические двери
      • ✹ Замки узкопрофильные
      • ✹ Фиксаторы
      ✹ Дверные петли
      • ✹ Дверные петли для деревянных дверей
      • ✹ Дверные петли приварные
      • ✹ Петли-стрелы
      ✹ Дверные ручки
      • ✹ Дверные ручки для Китайских дверей
      • ✹ Дверные ручки для ПВХ дверей
      • ✹ Дверные ручки защелки
      • ✹ Дверные ручки комплектом межкомнатные
      • ✹ Дверные ручки на планке
      • ✹ Дверные ручки раздельные
      • ✹ Дверные ручки-кнопки
      • ✹ Дверные ручки-скобы
      • ✹ Дверные ручки комплектом
      ✹ Замки навесные
      • ✹ Багажные навесные замки
      • ✹ Замки велосипедные тросовые
      • ✹ Замки влагозащищенные
      • ✹ Замки общего назначения
      ✹ Засовы и задвижки ✹ Комплектующие к дверным ручкам
      • ✹ Завертки к дверным ручкам
      • ✹ Накладка на сувальдные замки
      • ✹ Накладка на цилиндровые замки
      ✹ Ограничители, стопперы ✹ Ответные планки для замков и защелок
      ✹ Почтовые замки ✹ Цилиндровые механизмы
      • ✹ Цилиндровые механизмы Ключ-Вертушка
      • ✹ Цилиндровые механизмы Ключ-Ключ
      • ✹ Цилиндровые механизмы сантехнические
      ✹ Цифры дверные ✹ Ящики почтовые
      Главная
      • Каталог товаров промышленного назначения
        • Колеса и колесные опоры
        • Кухонные аксессуары
        • Лестницы
        • Мебельная фурнитура
        • Мойки из нержавейки
        • Системы на основе труб
        • Складское оборудование и техника
        • СПЕЦ Колеса
      Каталог
      • Мебельная фурнитура
      Мебельная фурнитура
      Корзина 00.00 р.
      Корзина
      Ваша корзина пуста!
      • ✹ Дверная фурнитура
        ✹ Глазки дверные ✹ Дверные доводчики
        • ✹ Гидравлические дверные доводчики
        • ✹ Дверные доводчики с скользящей тягой
        • ✹ Пружинные и пневматические дверные доводчики
        ✹ Дверные замки, механизмы
        • ✹ Задвижки для межкомнатных дверей
        • ✹ Замки врезные на деревянные двери
        • ✹ Замки врезные на металлические двери
        • ✹ Замки межкомнатные
        • ✹ Замки накладные для деревянных дверей
        • ✹ Замки накладные на металлические двери
        • ✹ Замки узкопрофильные
        • ✹ Фиксаторы
        ✹ Дверные петли
        • ✹ Дверные петли для деревянных дверей
        • ✹ Дверные петли приварные
        • ✹ Петли-стрелы
        ✹ Дверные ручки
        • ✹ Дверные ручки для Китайских дверей
        • ✹ Дверные ручки для ПВХ дверей
        • ✹ Дверные ручки защелки
        • ✹ Дверные ручки комплектом межкомнатные
        • ✹ Дверные ручки на планке
        • ✹ Дверные ручки раздельные
        • ✹ Дверные ручки-кнопки
        • ✹ Дверные ручки-скобы
        • ✹ Дверные ручки комплектом
        ✹ Замки навесные
        • ✹ Багажные навесные замки
        • ✹ Замки велосипедные тросовые
        • ✹ Замки влагозащищенные
        • ✹ Замки общего назначения
        ✹ Засовы и задвижки ✹ Комплектующие к дверным ручкам
        • ✹ Завертки к дверным ручкам
        • ✹ Накладка на сувальдные замки
        • ✹ Накладка на цилиндровые замки
        ✹ Ограничители, стопперы ✹ Ответные планки для замков и защелок
        ✹ Почтовые замки ✹ Цилиндровые механизмы
        • ✹ Цилиндровые механизмы Ключ-Вертушка
        • ✹ Цилиндровые механизмы Ключ-Ключ
        • ✹ Цилиндровые механизмы сантехнические
        ✹ Цифры дверные ✹ Ящики почтовые
      • ✹ Садовый инвентарь
        ✹ Адаптеры, переходники
        • ✹ Адаптеры алюминиевые
        • ✹ Адаптеры латунные
        • ✹ Адаптеры пласмассовые
        • ✹ Муфты алюминиевые
        • ✹ Муфты латунные
        • ✹ Муфты пластмассовые
        • ✹ Переходники латунные
        • ✹ Переходники пластмассовые
        • ✹ Разветвители латунные
        • ✹ Разветвители пластмассовые
        • Показать все
        ✹ Баки ✹ Буры садовые
        • ✹ Буры лопастные
        • ✹ Буры шнековые
        • ✹ Удлинители
        ✹ Ведра, тазы оцинкованные
        • ✹ Ведра оцинкованные
        • ✹ Тазы оцинкованные
        ✹ Вилы
        • ✹ Вилы садово-огородные
        • ✹ Вилы сенные
        ✹ Воздуходувки
        • ✹ Воздуходувки аккумуляторные
        • ✹ Воздуходувки бензиновые
        ✹ Газонокосилки
        • Газонокосилки аккумуляторные
        • ✹ Газонокосилки аккумуляторные
        • ✹ Газонокосилки бензиновые
        • ✹ Газонокосилки электрические
        • ✹ Ножи для газонокосилок
        ✹ Грабли
        • ✹ Грабли веерные
        • ✹ Грабли классические
        ✹ Дровоколы ✹ Душ садовый ✹ Зонты ✹ Измельчители ✹ Кашпо
        • ✹ Вкладыши
        • ✹ Кашпо подвесные
        • ✹ Кашпо пристенные
        • ✹ Кронштейны для кашпо
        • ✹ Цепочки для кашпо
        ✹ Колеса промышленные ✹ Косы
        • ✹ Комплектующие для кос
        • ✹ Косы-литовки
        • ✹ Косы-секачи
        • ✹ Косы-серпаны
        ✹ Культиваторы, аэраторы ✹ Ледоступы, ледянки
        ✹ Лейки ✹ Лопаты
        • Лопаты автомобильные, походные
        • ✹ Лопаты автомобильные, походные
        • ✹ Лопаты без черенка
        • ✹ Лопаты с деревянным черенком
        • ✹ Лопаты с металлическим черенком
        • ✹ Лопаты с фибергласовым черенком
        ✹ Мачете ✹ Мебель для пикника ✹ Мелкий садовый инструмент
        • ✹ Конусы посадочные
        • ✹ Корнеудалители
        • ✹ Мотыжки
        • ✹ Наборы мелкого садового инструмента
        • ✹ Рыхлители
        • ✹ Серия Classic
        • ✹ Серия Connect
        • ✹ Серия Era
        • ✹ Серия Ergo
        • ✹ Серия Flower green
        • Показать все
        ✹ Метлы, веники
        • ✹ Веники
        • ✹ Метлы
        ✹ Мотыги, полольники, кетмени
        • ✹ Кетмени
        • ✹ Мотыги из нержавеющей стали
        • ✹ Мотыги стальные
        • ✹ Полольники
        ✹ Насадки для полива
        • ✹ Дождеватели
        • ✹ Наборы
        • ✹ Пистолеты - распылители
        • ✹ Распылители
        • ✹ Распылители на штанге
        ✹ Настенные держатели ✹ Ножи садовые
        • ✹ Копулировочные
        • ✹ Универсальные
        ✹ Ножницы садовые
        • ✹ Газонные ножницы
        • ✹ Кусторезы
        • ✹ Садовые ножницы и кусторезы аккумуляторные
        ✹ Ножовки, пилы садовые ✹ Одежда, защита рук
        • ✹ Перчатки хозяйственные
        • ✹ Плащи-дождевики
        • ✹ Рукавицы
        • ✹ Садовые перчатки
        • ✹ Шапки
        ✹ Опрыскиватели
        • ✹ Опрыскиватели аккумуляторные
        • ✹ Опрыскиватели бензиновые
        • ✹ Опрыскиватели ручные
        ✹ Парники, теплицы
        • ✹ Комплектующие к парникам
        • ✹ Парники
        ✹ Пленки, укрывные материалы
        • ✹ Защита
        • ✹ Колышки
        • ✹ Пленка
        • ✹ Укрывной материал
        ✹ Плоскорезы
        ✹ Приготовление пищи
        • ✹ Аксессуары
        • ✹ Барбекю
        • ✹ Коптильни
        • ✹ Мангалы
        • ✹ Решетки-гриль
        • ✹ Топливо
        • ✹ Шампуры
        ✹ Приспособления для рассады ✹ Садовые аксессуары ✹ Садовые ограждения
        • ✹ Арки садовые
        • ✹ Бордюрные ленты
        • ✹ Бордюры садовые
        • ✹ Заборы декоративные
        • ✹ Кустодержатели
        • ✹ Опоры для поддержки веток деревьев
        • ✹ Опоры для растений
        • ✹ Опоры для цветов
        • ✹ Поддержки для растений
        • ✹ Решетки заборные
        • Показать все
        ✹ Секаторы
        • ✹ Для топиария и бонсай
        • ✹ Прививочные
        • ✹ Секаторы аккумуляторные
        • ✹ Цветочные
        ✹ Серпы ✹ Сетки газонные ✹ Скарификаторы ✹ Снегоуборочный инвентарь
        • ✹ Водосгоны для пола
        • ✹ Движки, скреперы
        • ✹ Ледорубы, скребки
        • ✹ Лопаты снеговые автомобильные
        • ✹ Лопаты снеговые без черенка
        • ✹ Лопаты снеговые с черенком
        ✹ Сучкорезы
        • ✹ Прямого реза
        • ✹ С наковальней
        • ✹ Штанговые
        ✹ Таймеры для полива ✹ Тачки, тележки, носилки
        • ✹ Колеса и камеры для тачки
        • ✹ Носилки
        • ✹ Тачки
        • ✹ Тележки
        ✹ Товары для пикника
        • ✹ Аккумуляторы холода
        • ✹ Бутылки
        • ✹ Наборы посуды
        • ✹ Стаканы
        • ✹ Термосумки
        ✹ Триммеры
        • ✹ Аксессуары для триммеров
        • ✹ Диски для триммеров
        • ✹ Катушки для триммеров
        • ✹ Леска для триммеров
        • ✹ Триммеры аккумуляторные
        • ✹ Триммеры бензиновые
        • ✹ Триммеры электрические
        ✹ Умывальники ✹ Цветочные горшки ✹ Черенки, рукоятки
        • ✹ Рукоятки
        • ✹ Черенки без резьбы
        • ✹ Черенки с резьбой
        ✹ Шланги, катушки
        • ✹ Катушки для шлангов
        • ✹ Шланги
      • ✹ Инструменты
        ✹ Автомобильный инструмент
        • ✹ Аксессуары автомобильные
          • ✹ Антибуксы
          • ✹ Ареометры
          • ✹ Воронки
          • ✹ Держатели телефонов и планшетов
          • ✹ Канистры для топлива
          • ✹ Пакеты для шин
          • ✹ Провода стартовые
          • ✹ Резинки багажные
          • ✹ Ремни багажные
          • ✹ Салфетки и губки
          • ✹ Тросы буксировочные
          • ✹ Удобства в автомобиле
          • ✹ Щетки стеклоочистителя
        • ✹ Домкраты
          • ✹ Домкраты гидравлические бутылочные
          • ✹ Домкраты гидравлические подкатные
          • ✹ Домкраты механические бутылочные
          • ✹ Домкраты реечные
          • ✹ Домкраты ромбовые
          • ✹ Домкраты электрогидравлические
        • ✹ Компрессоры автомобильные
        • ✹ Лебедки автомобильные
        • ✹ Масленки
        • ✹ Мебель гаражная
        • ✹ Насосы гидравлические
        • ✹ Пневмоинструмент
          • ✹ Гайковерты пневматические
          • ✹ Дрели пневматические
          • ✹ Заклепочники пневматические
          • ✹ Краскораспылители
          • ✹ Молотки пневматические
          • ✹ Нейлеры пневматические
          • ✹ Пистолеты пневматические
          • ✹ Пневмоинструмент (аксессуары)
          • ✹ Степлеры пневматические
          • ✹ Трещотки пневматические
          • ✹ Хоппер ковши
          • ✹ Шлифовальные машины
          • ✹ Шуруповерты пневматические
        • ✹ Поддоны для сбора масла
        • ✹ Подставки под машину регулируемые
        • Показать все
        ✹ Измерительный инструмент
        • ✹ Гидроуровни
        • ✹ Дальномеры
        • ✹ Измерительные колеса
        • ✹ Линейки
        • ✹ Микрометры
        • ✹ Рулетки
        • ✹ Рулетки геодезические
        • ✹ Угольники
        • ✹ Уровни
          • ✹ Уровни алюминиевые
          • ✹ Уровни пластмассовые
        • ✹ Уровни лазерные
          • ✹ Аксессуары для лазерных уровней
        • Показать все
        ✹ Крепежный инструмент
        • ✹ Гвозди для мебельного степлера
        • ✹ Дюбели
        • ✹ Дюбель-гвозди
        • ✹ Заклепки
        • ✹ Заклепочники
        • ✹ Крепеж перфорированный
          • ✹ Анкеры регулируемые
          • ✹ Кляймеры
          • ✹ Крабы соединительные
          • ✹ Ленты
          • ✹ Мебельный крепеж
          • ✹ Опоры бруса
          • ✹ Пластины
          • ✹ Подвесы
          • ✹ Проушины прямы
          • ✹ Проушины угловые
          • ✹ Уголки
        • ✹ Кронштейны
          • ✹ Кронштейны декоративные
          • ✹ Кронштейны угловые
          • ✹ Кронштейны усиленные
        • ✹ Наборы крепежных изделий
        • ✹ Проволока
          • ✹ Проволока из нержавеющей стали
          • ✹ Проволока с ПВХ покрытием
          • ✹ Проволока стальная оцинкованная
        • ✹ Саморезы
        • Показать все
        ✹ Отделочный инструмент
        • ✹ Аксессуары для плиткорезов
        • ✹ Валики
          • ✹ Бюгели
          • ✹ Валики игольчатые
          • ✹ Валики прижимные
          • ✹ Валики с ручкой
          • ✹ Шубки для валиков
        • ✹ Ведра строительные
        • ✹ Гладилки
        • ✹ Захваты строительные
        • ✹ Инструмент для затирки швов
        • ✹ Инструмент для нанесения декоративных покрытий
        • ✹ Инструмент по газо и пенобетону
        • ✹ Инструмент по гипсокартону
        • ✹ Карандаши строительные
        • Показать все
        ✹ Прочий инструмент
        • ✹ Горелки газовые
        • ✹ Замки
          • ✹ Навесные
          • ✹ Накладные и врезные
          • ✹ Тросовые и цепные
        • ✹ Изделия канатно-веревочные
          • ✹ Веревки
          • ✹ Канаты
          • ✹ Наборы шпагатов
          • ✹ Нити
          • ✹ Фалы
          • ✹ Шнуры
          • ✹ Шпагаты
        • ✹ Инструмент для пайки
          • ✹ Выжигатели по дереву
          • ✹ Материалы и принадлежности для пайки
          • ✹ Наборы для пайки
          • ✹ Наборы пинцетов
          • ✹ Пасты
          • ✹ Паяльники электрические
          • ✹ Припой
        • ✹ Инструмент для прочистки труб
        • ✹ Клеевые пистолеты
        • ✹ Клеевые стержни
        • ✹ Лампы паяльные, керосиновые
        • ✹ Лестницы
        • ✹ Лупы
        • Показать все
        ✹ Режущий инструмент
        • ✹ Болторезы и труборезы
          • ✹ Болторезы
          • ✹ Труборезы
        • ✹ Буры и насадки для перфоратора
          • ✹ Буры
          • ✹ Коронки
          • ✹ Насадки
        • ✹ Диски алмазные отрезные
        • ✹ Диски пильные
        • ✹ Диски универсальные
        • ✹ Круги и диски абразивные
          • ✹ Круги абразивные на ворсовой подложке
          • ✹ Круги и диски полировальные
          • ✹ Круги лепестковые радиальные (с оправкой)
          • ✹ Круги лепестковые торцевые
          • ✹ Круги отрезные и зачистные армированные
          • ✹ Круги шлифовальные гибкие
          • ✹ Круги шлифовальные для точила
          • ✹ Треугольники абразивные на ворсовой подложке
        • ✹ Ленты абразивные (для шлифмашин)
        • ✹ Насадки для многофункционального инструмента (МФИ)
        • ✹ Ножи
          • ✹ Лезвия для ножей
          • ✹ Ножи для резки напольных покрытий
          • ✹ Ножи для резки обоев
          • ✹ Ножи для резки теплоизоляции
          • ✹ Ножи кухонные
          • ✹ Ножи строительные
          • ✹ Ножи туристические
        • ✹ Ножи для электрических рубанков
        • Показать все
        ✹ Силовое оборудование
        • ✹ Аккумуляторный инструмент
          • ✹ Батареи аккумуляторные
          • ✹ Гайковерты ударные аккумуляторные
          • ✹ Дрели-шуруповерты аккумуляторные
          • ✹ Зарядные устройства
          • ✹ Лобзики аккумуляторные
          • ✹ Машинки для укладки плитки
          • ✹ МФИ аккумуляторные
          • ✹ Отвертки аккумуляторные
          • ✹ Перфораторы аккумуляторные
          • ✹ Сабельные пилы аккумуляторные
          • ✹ УШМ аккумуляторные
          • ✹ Циркулярные пилы аккумуляторные
          • ✹ Шлифовальные машины аккумуляторные
        • ✹ Аксессуары для бензорезов
        • ✹ Аксессуары для бетоносмесителей
          • ✹ Венцы
          • ✹ Ремни
          • ✹ Чехлы
          • ✹ Шестерни
        • ✹ Аксессуары для виброплит
        • ✹ Аксессуары для генераторов
        • ✹ Аксессуары для измельчителей садовых
          • ✹ Ножи сменные
        • ✹ Аксессуары для моечных машин высокого давления
        • ✹ Аксессуары для мотобуров
          • ✹ Удлинители для шнеков
          • ✹ Шнеки
        • ✹ Аксессуары для насосов
        • ✹ Аксессуары для сварки
          • ✹ Горелки сварочные
          • ✹ Держатели электродов
          • ✹ Клеммы
          • ✹ Наконечники токосъемные
          • ✹ Подающие ролики
          • ✹ Сопла газовые
          • ✹ Фиксаторы магнитные
          • ✹ Цангодержатели
          • ✹ Электроды
        • Показать все
        ✹ Слесарный инструмент
        • ✹ Биты
          • ✹ Адаптеры и переходники
          • ✹ Биты наборы
          • ✹ Биты с торцевыми головками
        • ✹ Бокорезы, кусачки
        • ✹ Воротки, удлинители, переходники
          • ✹ Воротки
          • ✹ Переходники
          • ✹ Шарниры карданные
        • ✹ Выколотки
        • ✹ Головки сменные
          • ✹ Головки многоразмерные
          • ✹ Головки с битой
          • ✹ Головки свечные
          • ✹ Головки торцевые
          • ✹ Головки ударные
          • ✹ Головки удлиненные
        • ✹ Длинногубцы
          • ✹ Длинногубцы изогнутые
          • ✹ Длинногубцы прямые
          • ✹ Длинногубцы, двойной рычажный механизм
        • ✹ Зажимы с фиксатором
        • ✹ Зубила
        • ✹ Инструменты для зачистки и обжима
        • ✹ Киянки
          • ✹ Киянки деревянные
          • ✹ Киянки резиновые
        • Показать все
        ✹ Столярный инструмент
        • ✹ Верстаки
        • ✹ Долота и стамески
          • ✹ Долота-стамески
          • ✹ Долота-стамески наборы
          • ✹ Стамески
          • ✹ Стамески наборы
        • ✹ Кирки
        • ✹ Ломы и гвоздодеры
          • ✹ Гвоздодеры
          • ✹ Ломы строительные
        • ✹ Ножовки
          • ✹ Ножовки по гипсокартону
          • ✹ Ножовки по дереву
          • ✹ Ножовки по пенобетону
        • ✹ Пилы
        • ✹ Резцы по дереву
        • ✹ Струбцины
          • ✹ Струбцины F-образные
          • ✹ Струбцины G-образные
          • ✹ Струбцины клещеобразные
          • ✹ Струбцины ленточные
          • ✹ Струбцины угловые
          • ✹ Стурбцины быстрозажимные
        • ✹ Стусла
          • ✹ Пилы для стусла
          • ✹ Полотна для прецизионного стусла
          • ✹ Стусла пластиковые
          • ✹ Стусла прецизионные
        • ✹ Топоры и колуны
          • ✹ Колуны
          • ✹ Рукоятки для колунов
          • ✹ Топорища
          • ✹ Топоры
      • ✹ Комплектующие для кухни
        ✹ Бокалодержатели ✹ Выкатные корзины
        ✹ Лотки для столовых приборов ✹ Сушки для посуды
      • ✹ Товары для дома
        ✹ Декор для дома
        • Вазы
        • Предметы декора для интерьера
          • Фоторамки
          • Шкатулки и держатели для украшений
        • ✹ Аромадиффузоры и свечи
        • ✹ Искусственные цветы и сухоцветы
        • ✹ Часы
        ✹ Домашнее хранение
        • ✹ Пластиковые короба и корзины
      • ✹ Мебельная фурнитура
        ✹ Амортизаторы и толкатели ✹ Крепежная фурнитура
        • ✹ Кронштейны для полок
        ✹ Крючки мебельные ✹ Мебельные замки
        ✹ Навесы мебельные ✹ Направляющие мебельные ✹ Опоры для столов ✹ Опоры колесные
        ✹ Опоры мебельные ✹ Петли мебельные
        • ✹ Петли для стекла
        • ✹ Петли карточные
        • ✹ Петли мебельные четырехшарнирные
        • ✹ Петли секретерная
        ✹ Подъемные механизмы ✹ Ручки мебельные
        • ✹ Ручки мебельные-кнопки
      Каталог Поиск Корзина Корзина 00.00 р. Избранное Войти
      • WhatsApp
      Авторизация
      Забыли пароль?
      Регистрация

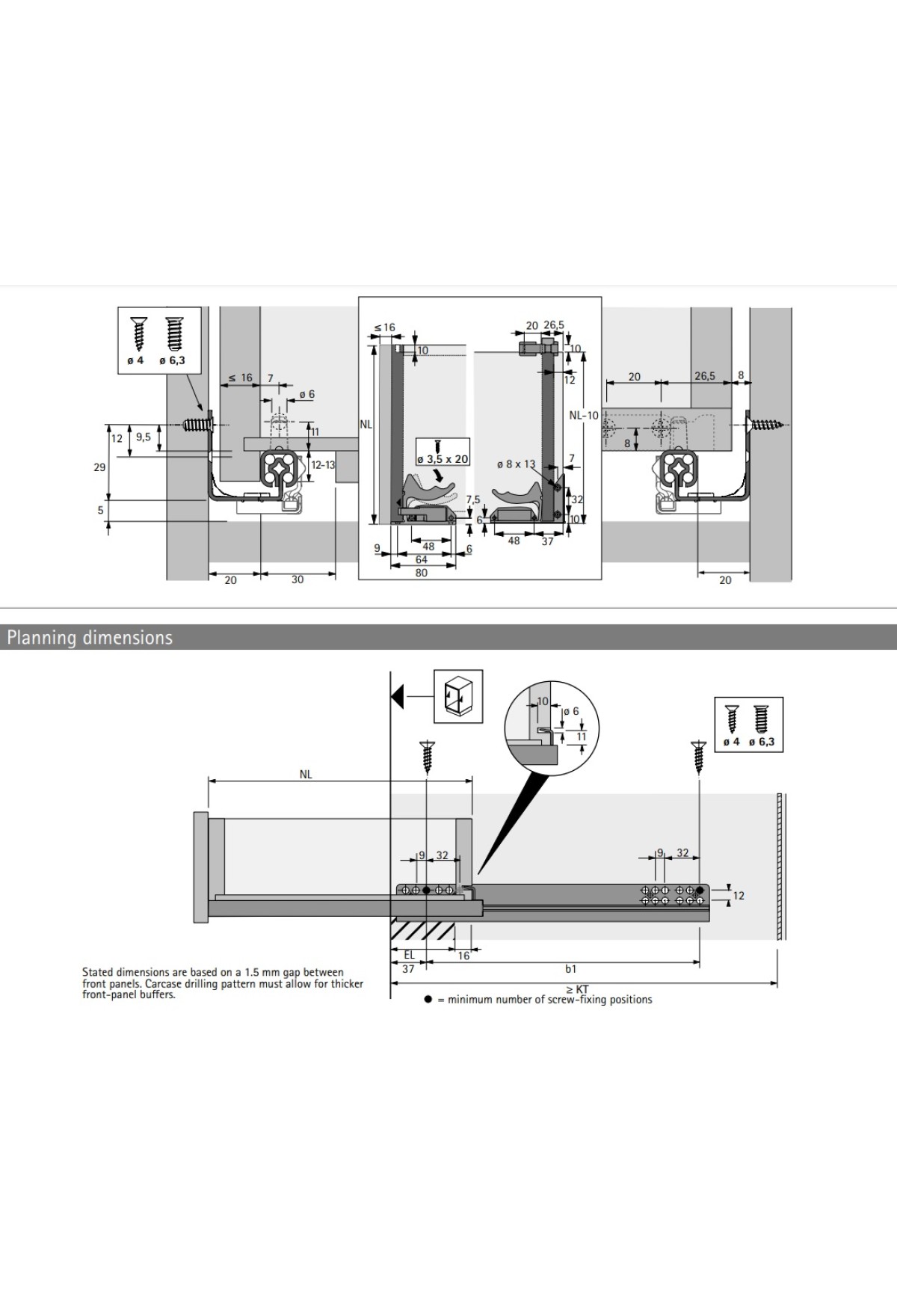
      Направляющая скрытого надвижного монтажа частичного выдвижения Quadro 25 Silent System с доводчиком 500мм левая 9105682 Hettich

      • Главная
      • LV
        • *MFT
        • *МФК
        • 510
        • 531
        • 547
        • 571
        • 599
        • 79
        • 81
        • @Металлист
        • LV
        • OLD-АРХИВ
        • VR1
        • VR1-ТРУБЫ PE-XA СШИТЫЙ ПОЛИЭТИЛЕН
        • VR10-
        • VR15
        • VR3-Мебельная фурнитура
        • VR3-Товары для дома
        • VR5
        • VR6
        • Выдвижные корзины для кухни
        • Газовые лифты
        • Дверная фурнитура
        • Замки для мебели
        • Инструменты
        • Каталог
        • Комплектующие для кухни
        • Крепежная фурнитура
        • Кухонные аксессуары
        • Мебельная фурнитура
        • Мебельные крючки
        • Мебельные опоры
        • Мебельные петли
        • Мебельные ручки
        • Мерч и рекламная продукция
        • Навесы для шкафов
        • Основная
        • пет
        • Поддоны для выдвижных ящиков и органайзеры
        • Полкодержатели
        • Садовый инвентарь
        • Системы выдвижения
        • Системы отталкивания и демпфирования
        • Скобяные изделия
        • СОЗДАТЬ
        • Сушки для посуды
        • Товары для дома
        • Трубы и штангодержатели
        • ✹ Инструменты
        • ✹ Комплектующие для кухни
        • ✹ Мебельная фурнитура
        • ✹ Отопление
        • ✹ Садовый инвентарь
        • ✹ Товары для дома
        • ✹ ТОВАРЫ МАРКЕТПЛЕЙСА
        • ✹ Дверная фурнитура
        • Torg
      • Раздел: 8. Системы выдвижения
        • Раздел: 1. Лицевая фурнитура
        • Раздел: 10. Опоры мебельные
        • Раздел: 11. Комплектующие для изготовления столов
        • Раздел: 12. Кроватные основания и комплектующие
        • Раздел: 13. Клей
        • Раздел: 14. Кромочные материалы
        • Раздел: 15. Пластики HPL
        • Раздел: 16. Плитные материалы
        • Раздел: 17. Фасады
        • Раздел: 18. Рамочный профиль для фасадов
        • Раздел: 19. Замки для мебели
        • Раздел: 2. Освещение и Электрокомпоненты
        • Раздел: 20. Крепежная и соединительная фурнитура
        • Раздел: 21. Инструменты и оборудование
        • Раздел: 22. Трубы и элементы крепления
        • Раздел: 23. Упаковочный материал
        • Раздел: 24. Реставрационные материалы
        • Раздел: 25. Механизмы трансформации
        • Раздел: 26. Аксессуары для ванных комнат
        • Раздел: 27. Товары для сада и отдыха
        • Раздел: 28. Декор
        • Раздел: 29. Рекламная продукция
        • Раздел: 3. Гардеробные системы и системы хранения
        • Раздел: 4. Столешницы и стеновые панели
        • Раздел: 5. Кухонные мойки и смесители
        • Раздел: 6. Кухонное наполнение и аксессуары
        • Раздел: 7. Механизмы для открывания фасадов
        • Раздел: 8. Системы выдвижения
        • Раздел: 9. Шкафные системы: раздвижные и складные двери
      • Раздел: Направляющие
        • Раздел: Выдвижные ящики
        • Раздел: Металлобоксы
        • Раздел: Направляющие
      • Раздел: Направляющие скрытого монтажа
        • Раздел: Направляющие скрытого монтажа
        • Раздел: Пластиковые направляющие
        • Раздел: Роликовые направляющие
        • Раздел: Шариковые направляющие
      • Направляющая скрытого надвижного монтажа частичного выдвижения Quadro 25 Silent System с доводчиком 500мм левая 9105682 Hettich
      Направляющая скрытого надвижного монтажа частичного выдвижения Quadro 25 Silent System с доводчиком 500мм левая 9105682 Hettich
      Направляющая скрытого надвижного монтажа частичного выдвижения Quadro 25 Silent System с доводчиком 500мм левая 9105682 Hettich 0 839.75 р. 979.71 р.
      Направляющая скрытого надвижного монтажа частичного выдвижения Quadro 25 Silent System с доводчиком 500мм левая 9105682 Hettich
      Направляющая скрытого надвижного монтажа частичного выдвижения Quadro 25 Silent System с доводчиком 500мм левая 9105682 Hettich
      Направляющая скрытого надвижного монтажа частичного выдвижения Quadro 25 Silent System с доводчиком 500мм левая 9105682 Hettich
      Направляющая скрытого надвижного монтажа частичного выдвижения Quadro 25 Silent System с доводчиком 500мм левая 9105682 Hettich
      Направляющая скрытого надвижного монтажа частичного выдвижения Quadro 25 Silent System с доводчиком 500мм левая 9105682 Hettich
      Направляющая скрытого надвижного монтажа частичного выдвижения Quadro 25 Silent System с доводчиком 500мм левая 9105682 Hettich
      Направляющая скрытого надвижного монтажа частичного выдвижения Quadro 25 Silent System с доводчиком 500мм левая 9105682 Hettich
      На складе Код товара: LV-37656
      Hettich Производитель

      839.75 р. 979.71 р. экономия 139.96 р.

      Нашли дешевле?
      Информация о доставке
      Краткое описание

      Направляющая для деревянных ящиков с толщиной боковины до 16 мм.
      Левая, 1шт
      Silent System — встроенная система демпфирования для плавного, бесшумного закрывания.
      Регулировка по высоте без инструмента.
      Материал: Оцинкованная сталь.

      Гибкая система замены — вместо Quadro с частичным выдвижением устанавливаются направляющие полного выдвижения, размеры корпуса, ящика и передней панели при этом не меняются.

      Для монтажа направляющей Quadro надвижного монтажа необходимо приобрести фиксатор ОТДЕЛЬНО:
      Фиксатор левый - арт. Лавра 37115

      Поделиться
      Поделиться
      Нашли дешевле?

      Если у конкурента цена ниже — сделаем скидку! Промокод отправим на телефон или электронную почту.

      Введите адрес доставки
      Отзывы 0
      • На данный товар ещё нет отзывов.
      Войдите или зарегистрируйтесь чтобы оставить отзыв
      Вопросы и ответы 0
      • Еще не было вопросов
      Задать вопрос
      Нажимая на кнопку «Отправить вопрос», Вы даете согласие на обработку персональных данных.
      Супер SALE
      Комплект направляющих Actro You Silent System для ящиков AvanTech You 450мм 9257006 Hettich
      Комплект направляющих Actro You Silent System для ящиков AvanTech You 450мм 9257006 Hettich
      Комплект направляющих Actro You Silent System для ящиков AvanTech You 450мм 9257006 Hettich
      На складе Код товара: LV-37975 Комплект направляющих Actro You Silent System для ящиков AvanTech You 450мм 9257006 Hettich

      -8 %3197.62 р. 3488.32 р.

      Супер SALE
      Хеттих/Wing Line L* комплект профилей 1200мм, алюминий, антрацит /9339502 На складе Код товара: LV-97774 Хеттих/Wing Line L* комплект профилей 1200мм, алюминий, антрацит /9339502

      -8 %2875.84 р. 3137.28 р.

      Хеттих/AvanTech You ящик 100% выдвижения 139*500мм, серебристый, БЕЗ направл, без соединителей /9353349 аналог 97306
      Хеттих/AvanTech You ящик 100% выдвижения 139*500мм, серебристый, БЕЗ направл, без соединителей /9353349 аналог 97306
      На складе Код товара: LV-97736 Хеттих/AvanTech You ящик 100% выдвижения 139*500мм, серебристый, БЕЗ направл, без соединителей /9353349 аналог 97306

      -8 %3654.08 р. 3986.27 р.

      Комплект боковин для выдвижных ящиков Matrix Box 92*500мм серебристый 513.00.925 Hafele
      Комплект боковин для выдвижных ящиков Matrix Box 92*500мм серебристый 513.00.925 Hafele
      Нет в наличии Код товара: LV-49843 Комплект боковин для выдвижных ящиков Matrix Box 92*500мм серебристый 513.00.925 Hafele

      -8 %7043.70 р. 7684.03 р.

      Супер SALE
      Хеттих/Wing Line L* комплект фурнитуры 25кг Heavy, самозакрывание, антрацит правый/9339347 На складе Код товара: LV-97775 Хеттих/Wing Line L* комплект фурнитуры 25кг Heavy, самозакрывание, антрацит правый/9339347

      -8 %3195.78 р. 3486.30 р.

      накладка МДФ № 5 / 8*58*2800 орех итальянский
      накладка МДФ № 5 / 8*58*2800 орех итальянский
      накладка МДФ № 5 / 8*58*2800 орех итальянский
      На складе Код товара: LV-30005-16 накладка МДФ № 5 / 8*58*2800 орех итальянский

      -13 %209.24 р. 241.43 р.

      эксцентрик MAXIFIX E стяжка шестигр. без покрытия SW6 d35мм/262.87.003
      эксцентрик MAXIFIX E стяжка шестигр. без покрытия SW6 d35мм/262.87.003
      эксцентрик MAXIFIX E стяжка шестигр. без покрытия SW6 d35мм/262.87.003
      эксцентрик MAXIFIX E стяжка шестигр. без покрытия SW6 d35мм/262.87.003
      На складе Код товара: LV-49214 эксцентрик MAXIFIX E стяжка шестигр. без покрытия SW6 d35мм/262.87.003

      -13 %135.59 р. 156.45 р.

      Хеттих/AvanTech You ящик 100% выдвижения 251*500мм, белый, БЕЗ направл с соединит. new /9381992 На складе Код товара: LV-97753 Хеттих/AvanTech You ящик 100% выдвижения 251*500мм, белый, БЕЗ направл с соединит. new /9381992

      -8 %7240.51 р. 7898.74 р.

      Направляющая скрытого надвижного монтажа частичного выдвижения Quadro 25 Silent System с доводчиком 300мм правая 9105666 Hettich
      Направляющая скрытого надвижного монтажа частичного выдвижения Quadro 25 Silent System с доводчиком 300мм правая 9105666 Hettich
      Направляющая скрытого надвижного монтажа частичного выдвижения Quadro 25 Silent System с доводчиком 300мм правая 9105666 Hettich
      На складе Код товара: LV-37522 Направляющая скрытого надвижного монтажа частичного выдвижения Quadro 25 Silent System с доводчиком 300мм правая 9105666 Hettich

      -14 %723.01 р. 843.51 р.

      Супер SALE
      Хеттих/Sensys/Intermat* монтажная планка 8099 3мм линейная с эксцентр (50)9117342
      Хеттих/Sensys/Intermat* монтажная планка 8099 3мм линейная с эксцентр (50)9117342
      На складе Код товара: LV-37749 Хеттих/Sensys/Intermat* монтажная планка 8099 3мм линейная с эксцентр (50)9117342

      -13 %388.35 р. 448.10 р.

      Супер SALE
      Петля мебельная Aximat 100SM 270 градусов под прикручивание 344.26.000 Hafele
      Петля мебельная Aximat 100SM 270 градусов под прикручивание 344.26.000 Hafele
      Петля мебельная Aximat 100SM 270 градусов под прикручивание 344.26.000 Hafele
      На складе Код товара: LV-49940 Петля мебельная Aximat 100SM 270 градусов под прикручивание 344.26.000 Hafele

      -8 %1958.33 р. 2121.52 р.

      Петля мебельная накладная Sensys 8646i 110 градусов с доводчиком для тонких фасадов 9091761 Hettich
      Петля мебельная накладная Sensys 8646i 110 градусов с доводчиком для тонких фасадов 9091761 Hettich
      Петля мебельная накладная Sensys 8646i 110 градусов с доводчиком для тонких фасадов 9091761 Hettich
      На складе Код товара: LV-97436 Петля мебельная накладная Sensys 8646i 110 градусов с доводчиком для тонких фасадов 9091761 Hettich

      -14 %662.56 р. 772.98 р.

      Супер SALE
      Хеттих/AvanTech You ящик 100% выдвижения 101*500мм, антрацит + 4 компл петли, БЕЗ напр/9339633
      Хеттих/AvanTech You ящик 100% выдвижения 101*500мм, антрацит + 4 компл петли, БЕЗ напр/9339633
      Хеттих/AvanTech You ящик 100% выдвижения 101*500мм, антрацит + 4 компл петли, БЕЗ напр/9339633
      Хеттих/AvanTech You ящик 100% выдвижения 101*500мм, антрацит + 4 компл петли, БЕЗ напр/9339633
      На складе Код товара: LV-97639 Хеттих/AvanTech You ящик 100% выдвижения 101*500мм, антрацит + 4 компл петли, БЕЗ напр/9339633

      -8 %2477.20 р. 2702.40 р.

      Петля мебельная полунакладная NEO 105 градусов H=0мм с доводчиком H306B02 Boyard
      Петля мебельная полунакладная NEO 105 градусов H=0мм с доводчиком H306B02 Boyard
      На складе Код товара: LV-711154 Петля мебельная полунакладная NEO 105 градусов H=0мм с доводчиком H306B02 Boyard

      -19 %74.10 р. 91.20 р.

      Полкодержатель с присоской угловой 13*7,2мм SS14
      Полкодержатель с присоской угловой 13*7,2мм SS14
      Полкодержатель с присоской угловой 13*7,2мм SS14
      Полкодержатель с присоской угловой 13*7,2мм SS14
      На складе Код товара: LV-13074 Полкодержатель с присоской угловой 13*7,2мм SS14

      -19 %5.03 р. 6.19 р.

      Супер SALE
      Хеттих/AvanTech You* направляющие ACTRO You Silent System 500мм, 70кг (EB21) /9318216
      Хеттих/AvanTech You* направляющие ACTRO You Silent System 500мм, 70кг (EB21) /9318216
      На складе Код товара: LV-97448-1 Хеттих/AvanTech You* направляющие ACTRO You Silent System 500мм, 70кг (EB21) /9318216

      -8 %3629.87 р. 3959.86 р.

      Brass шуруп с потайной головкой прямой шлиц DIN 97, А2 3,5x16 PU=S Нет в наличии Код товара: LV-26601 Brass шуруп с потайной головкой прямой шлиц DIN 97, А2 3,5x16 PU=S

      -19 %5.50 р. 6.77 р.

      профиль д/светод ленты GTV GLAX для торца полки, ДСП 18мм, 3000мм,черный мат/PA-GLAXWN3M-AL-20M
      профиль д/светод ленты GTV GLAX для торца полки, ДСП 18мм, 3000мм,черный мат/PA-GLAXWN3M-AL-20M
      профиль д/светод ленты GTV GLAX для торца полки, ДСП 18мм, 3000мм,черный мат/PA-GLAXWN3M-AL-20M
      На складе Код товара: LV-33338 профиль д/светод ленты GTV GLAX для торца полки, ДСП 18мм, 3000мм,черный мат/PA-GLAXWN3M-AL-20M

      -8 %2949.60 р. 3217.74 р.

      Петля мебельная вкладная Sensys 8675 110 градусов без пружины 9073664 Hettich
      Петля мебельная вкладная Sensys 8675 110 градусов без пружины 9073664 Hettich
      Петля мебельная вкладная Sensys 8675 110 градусов без пружины 9073664 Hettich
      Петля мебельная вкладная Sensys 8675 110 градусов без пружины 9073664 Hettich
      На складе Код товара: LV-97170 Петля мебельная вкладная Sensys 8675 110 градусов без пружины 9073664 Hettich

      -13 %407.99 р. 470.76 р.

      Петля мебельная полунакладная Intermat 9973 110 градусов без пружины 9043362 Hettich
      Петля мебельная полунакладная Intermat 9973 110 градусов без пружины 9043362 Hettich
      Петля мебельная полунакладная Intermat 9973 110 градусов без пружины 9043362 Hettich
      Петля мебельная полунакладная Intermat 9973 110 градусов без пружины 9043362 Hettich
      На складе Код товара: LV-37517 Петля мебельная полунакладная Intermat 9973 110 градусов без пружины 9043362 Hettich

      -13 %255.07 р. 294.32 р.

      направляющие скрытого монтажа GTV 500мм, PUSH to open, 35кг(6шт)/PB-3D0FPO18-500-PRO
      направляющие скрытого монтажа GTV 500мм, PUSH to open, 35кг(6шт)/PB-3D0FPO18-500-PRO
      направляющие скрытого монтажа GTV 500мм, PUSH to open, 35кг(6шт)/PB-3D0FPO18-500-PRO
      направляющие скрытого монтажа GTV 500мм, PUSH to open, 35кг(6шт)/PB-3D0FPO18-500-PRO
      направляющие скрытого монтажа GTV 500мм, PUSH to open, 35кг(6шт)/PB-3D0FPO18-500-PRO
      На складе Код товара: LV-09654 направляющие скрытого монтажа GTV 500мм, PUSH to open, 35кг(6шт)/PB-3D0FPO18-500-PRO

      -8 %2046.95 р. 2217.53 р.

      #направляющие шариковые полного выдвижения Push 500мм, 35кг/422.02.085
      #направляющие шариковые полного выдвижения Push 500мм, 35кг/422.02.085
      #направляющие шариковые полного выдвижения Push 500мм, 35кг/422.02.085
      Нет в наличии Код товара: LV-94193 #направляющие шариковые полного выдвижения Push 500мм, 35кг/422.02.085

      -8 %1478.70 р. 1601.93 р.

      Удлинитель встраиваемый цилиндрический CHARGER MINI 60мм на 1 розетка алюминий AE-BPW1S1UCH-53 GTV
      Удлинитель встраиваемый цилиндрический CHARGER MINI 60мм на 1 розетка алюминий AE-BPW1S1UCH-53 GTV
      Нет в наличии Код товара: LV-16225 Удлинитель встраиваемый цилиндрический CHARGER MINI 60мм на 1 розетка алюминий AE-BPW1S1UCH-53 GTV

      -8 %5350.46 р. 5836.86 р.

      Хеттих/AvanTech You ящик 100% выдвижения 251*500мм, антрацит, БЕЗ направл, с соединителями /9381999
      Хеттих/AvanTech You ящик 100% выдвижения 251*500мм, антрацит, БЕЗ направл, с соединителями /9381999
      Хеттих/AvanTech You ящик 100% выдвижения 251*500мм, антрацит, БЕЗ направл, с соединителями /9381999
      Хеттих/AvanTech You ящик 100% выдвижения 251*500мм, антрацит, БЕЗ направл, с соединителями /9381999
      Хеттих/AvanTech You ящик 100% выдвижения 251*500мм, антрацит, БЕЗ направл, с соединителями /9381999
      Хеттих/AvanTech You ящик 100% выдвижения 251*500мм, антрацит, БЕЗ направл, с соединителями /9381999
      На складе Код товара: LV-97746 Хеттих/AvanTech You ящик 100% выдвижения 251*500мм, антрацит, БЕЗ направл, с соединителями /9381999

      -8 %7240.51 р. 7898.74 р.

      Направляющие шариковые полного выдвижения 45*450мм на 30кг PK-OH45450 GX1 GTV
      Направляющие шариковые полного выдвижения 45*450мм на 30кг PK-OH45450 GX1 GTV
      Направляющие шариковые полного выдвижения 45*450мм на 30кг PK-OH45450 GX1 GTV
      Направляющие шариковые полного выдвижения 45*450мм на 30кг PK-OH45450 GX1 GTV
      На складе Код товара: LV-09203 Направляющие шариковые полного выдвижения 45*450мм на 30кг PK-OH45450 GX1 GTV

      -13 %471.30 р. 543.81 р.

      Петля мебельная накладная 110 градусов Н=0мм без пружины ZP-COCA450-BE-F GTV
      Петля мебельная накладная 110 градусов Н=0мм без пружины ZP-COCA450-BE-F GTV
      Петля мебельная накладная 110 градусов Н=0мм без пружины ZP-COCA450-BE-F GTV
      На складе Код товара: LV-11204 Петля мебельная накладная 110 градусов Н=0мм без пружины ZP-COCA450-BE-F GTV

      -19 %108.47 р. 133.50 р.

      Хеттих/Wing Line 230* комплект фурнитуры для 1 складной двери, правый/9225384
      Хеттих/Wing Line 230* комплект фурнитуры для 1 складной двери, правый/9225384
      На складе Код товара: LV-37156 Хеттих/Wing Line 230* комплект фурнитуры для 1 складной двери, правый/9225384

      -4 %18203.37 р. 19030.80 р.

      Гладильная доска выдвижная IRONFIX (монтаж в ящик) цвет алюминий 568.60.723 Hafele
      Гладильная доска выдвижная IRONFIX (монтаж в ящик) цвет алюминий 568.60.723 Hafele
      Гладильная доска выдвижная IRONFIX (монтаж в ящик) цвет алюминий 568.60.723 Hafele
      Гладильная доска выдвижная IRONFIX (монтаж в ящик) цвет алюминий 568.60.723 Hafele
      Гладильная доска выдвижная IRONFIX (монтаж в ящик) цвет алюминий 568.60.723 Hafele
      Нет в наличии Код товара: LV-94067 Гладильная доска выдвижная IRONFIX (монтаж в ящик) цвет алюминий 568.60.723 Hafele

      -4 %47130.38 р. 49272.67 р.

      заглушка самоклеющаяся под евровинт d13мм, камель U204(60шт)/3000 На складе Код товара: LV-21575 заглушка самоклеющаяся под евровинт d13мм, камель U204(60шт)/3000

      -19 %31.20 р. 38.40 р.

      Хеттих/петля Sensys 8676 110гр накладная, для тонких фасадов, б/пружинная(50шт)/9094450
      Хеттих/петля Sensys 8676 110гр накладная, для тонких фасадов, б/пружинная(50шт)/9094450
      Хеттих/петля Sensys 8676 110гр накладная, для тонких фасадов, б/пружинная(50шт)/9094450
      На складе Код товара: LV-97286 Хеттих/петля Sensys 8676 110гр накладная, для тонких фасадов, б/пружинная(50шт)/9094450

      -13 %521.48 р. 601.71 р.

      Полкодержатель скрытый без регулировки 10х100мм на 7,5кг коричневый
      Полкодержатель скрытый без регулировки 10х100мм на 7,5кг коричневый
      Полкодержатель скрытый без регулировки 10х100мм на 7,5кг коричневый
      На складе Код товара: LV-13186 Полкодержатель скрытый без регулировки 10х100мм на 7,5кг коричневый

      -19 %32.71 р. 40.26 р.

      ЛОФТ профиль под ЛДСП 18*30*3000мм, белый муар
      ЛОФТ профиль под ЛДСП 18*30*3000мм, белый муар
      Нет в наличии Код товара: LV-78004 ЛОФТ профиль под ЛДСП 18*30*3000мм, белый муар

      -8 %1591.92 р. 1724.58 р.

      ПВХ кромка 0,4*19 мм без клея бодега белый 3180 Laurus На складе Код товара: LV-46065 ПВХ кромка 0,4*19 мм без клея бодега белый 3180 Laurus

      -14 %736.80 р. 859.60 р.

      планка Боярд для петель EVO h=0 трапециевидная с эксц. регул, с евровинт, черый ник. (500) / H8030BN
      планка Боярд для петель EVO h=0 трапециевидная с эксц. регул, с евровинт, черый ник. (500) / H8030BN
      Нет в наличии Код товара: LV-711234 планка Боярд для петель EVO h=0 трапециевидная с эксц. регул, с евровинт, черый ник. (500) / H8030BN

      -19 %47.96 р. 59.02 р.

      Петля скрытая SOSS для толщины створки 13-16мм 341.07.718 Hafele
      Петля скрытая SOSS для толщины створки 13-16мм 341.07.718 Hafele
      Петля скрытая SOSS для толщины створки 13-16мм 341.07.718 Hafele
      Нет в наличии Код товара: LV-49266 Петля скрытая SOSS для толщины створки 13-16мм 341.07.718 Hafele

      -8 %3729.96 р. 4069.04 р.

      Hangroller 50 активатор демпфера для внутренней двери, сталь 405.11.225 Hafele
      Hangroller 50 активатор демпфера для внутренней двери, сталь 405.11.225 Hafele
      Hangroller 50 активатор демпфера для внутренней двери, сталь 405.11.225 Hafele
      Hangroller 50 активатор демпфера для внутренней двери, сталь 405.11.225 Hafele
      Hangroller 50 активатор демпфера для внутренней двери, сталь 405.11.225 Hafele
      Hangroller 50 активатор демпфера для внутренней двери, сталь 405.11.225 Hafele
      Нет в наличии Код товара: LV-49643 Hangroller 50 активатор демпфера для внутренней двери, сталь 405.11.225 Hafele

      -14 %1061.39 р. 1238.29 р.

      профиль д/светод ленты врезной 2206, 3000мм, алюминий (профиль, экран, заглушки-2шт)
      профиль д/светод ленты врезной 2206, 3000мм, алюминий (профиль, экран, заглушки-2шт)
      профиль д/светод ленты врезной 2206, 3000мм, алюминий (профиль, экран, заглушки-2шт)
      профиль д/светод ленты врезной 2206, 3000мм, алюминий (профиль, экран, заглушки-2шт)
      На складе Код товара: LV-33561 профиль д/светод ленты врезной 2206, 3000мм, алюминий (профиль, экран, заглушки-2шт)

      -13 %508.63 р. 586.88 р.

      Бутылочница 150мм Crystal левая с держателем для полотенец БЕЗ направляющих хром 549.35.450 Hafele
      Бутылочница 150мм Crystal левая с держателем для полотенец БЕЗ направляющих хром 549.35.450 Hafele
      Нет в наличии Код товара: LV-49887 Бутылочница 150мм Crystal левая с держателем для полотенец БЕЗ направляющих хром 549.35.450 Hafele

      -8 %10281.72 р. 11216.42 р.

      Направляющие шариковые полного выдвижения 550мм на 118кг 420.72.856 Hafele
      Направляющие шариковые полного выдвижения 550мм на 118кг 420.72.856 Hafele
      Направляющие шариковые полного выдвижения 550мм на 118кг 420.72.856 Hafele
      Нет в наличии Код товара: LV-94120 Направляющие шариковые полного выдвижения 550мм на 118кг 420.72.856 Hafele

      -8 %9000.22 р. 9818.42 р.

      профиль д/светод ленты GTV GLAX врезной, 2000мм, серебро(20шт)/PA-GLAX-AL
      профиль д/светод ленты GTV GLAX врезной, 2000мм, серебро(20шт)/PA-GLAX-AL
      профиль д/светод ленты GTV GLAX врезной, 2000мм, серебро(20шт)/PA-GLAX-AL
      профиль д/светод ленты GTV GLAX врезной, 2000мм, серебро(20шт)/PA-GLAX-AL
      профиль д/светод ленты GTV GLAX врезной, 2000мм, серебро(20шт)/PA-GLAX-AL
      На складе Код товара: LV-33330 профиль д/светод ленты GTV GLAX врезной, 2000мм, серебро(20шт)/PA-GLAX-AL

      -14 %653.59 р. 762.52 р.

      Выдвижная корзина посудосушитель 600мм БЕЗ направляющих хром WE29.0631.01.001
      Выдвижная корзина посудосушитель 600мм БЕЗ направляющих хром WE29.0631.01.001
      Выдвижная корзина посудосушитель 600мм БЕЗ направляющих хром WE29.0631.01.001
      Нет в наличии Код товара: LV-25822 Выдвижная корзина посудосушитель 600мм БЕЗ направляющих хром WE29.0631.01.001

      -8 %5952.60 р. 6493.74 р.

      заглушка для Maxifix 35 SW6 (круг), черный/262.87.390
      заглушка для Maxifix 35 SW6 (круг), черный/262.87.390
      заглушка для Maxifix 35 SW6 (круг), черный/262.87.390
      На складе Код товара: LV-49216 заглушка для Maxifix 35 SW6 (круг), черный/262.87.390

      -19 %17.06 р. 20.99 р.

      винт-конфирмат 6,3х50 шестигранник На складе Код товара: LV-21001-1 винт-конфирмат 6,3х50 шестигранник

      -8 %2420.00 р. 2640.00 р.

      ПВХ кромка 0,4*19 мм без клея яблоня локарно 4974 На складе Код товара: LV-46036 ПВХ кромка 0,4*19 мм без клея яблоня локарно 4974

      -13 %171.60 р. 198.00 р.

      Опора мебельная для столов 60х820мм матовый хром, крепление боковое
      Опора мебельная для столов 60х820мм матовый хром, крепление боковое
      На складе Код товара: LV-10049 Опора мебельная для столов 60х820мм матовый хром, крепление боковое

      -13 %457.38 р. 527.75 р.

      заглушка для эксцентрика №9 шоколадная(1000 шт/уп)
      заглушка для эксцентрика №9 шоколадная(1000 шт/уп)
      На складе Код товара: LV-21277 заглушка для эксцентрика №9 шоколадная(1000 шт/уп)

      -13 %160.29 р. 184.95 р.

      Хеттих/Sensys/Intermat* монтажная планка 8099 3мм, крестовая с евровинтом  (200шт)/9071627
      Хеттих/Sensys/Intermat* монтажная планка 8099 3мм, крестовая с евровинтом  (200шт)/9071627
      На складе Код товара: LV-37455 Хеттих/Sensys/Intermat* монтажная планка 8099 3мм, крестовая с евровинтом (200шт)/9071627

      -19 %64.97 р. 79.97 р.

      Комплект эксцентрика двухстороннего и штока без кольца На складе Код товара: LV-21087-1 Комплект эксцентрика двухстороннего и штока без кольца

      -19 %18.82 р. 23.17 р.

      ПВХ кромка 2*19 мм K004 KR без клея, дуб табачный Craft / К На складе Код товара: LV-46106 ПВХ кромка 2*19 мм K004 KR без клея, дуб табачный Craft / К

      -8 %1804.80 р. 1955.20 р.

      заглушка для Rafix 20, светлый бук/263.59.393
      заглушка для Rafix 20, светлый бук/263.59.393
      заглушка для Rafix 20, светлый бук/263.59.393
      На складе Код товара: LV-49218 заглушка для Rafix 20, светлый бук/263.59.393

      -19 %3.12 р. 3.84 р.

      Тэги: Направляющая скрытого надвижного монтажа частичного выдвижения Quadro 25 Silent System с доводчиком 500мм левая 9105682 Hettich, LV-37656, Hettich, LV, Раздел: 8. Системы выдвижения, Раздел: Направляющие, Раздел: Направляющие скрытого монтажа

      Выберите обязательные опции

      Мы используем файлы cookie и другие средства сохранения предпочтений и анализа действий посетителей сайта. Подробнее в Условия соглашения. Нажмите «Принять», если даете согласие на это.

      Принять
      MFT24



      2025

      Поддержка
      • 8-800-700-65-88
      • Обратный звонок
        Заказать обратный звонок
        Нажимая на кнопку «Отправить», Вы даете согласие на обработку персональных данных.

      Мы работаем для вас ежедневно:

      ПН: 9:00 - 18:00

      ВТ: 9:00 - 18:00

      СР: 9:00 - 18:00

      ЧТ: 9:00 - 18:00

      ПТ: 9:00 - 18:00

      СБ: 9:00 - 18:00

      ВС: 9:00 - 18:00

      Без перерывов на обед и выходных дней!

      Электронная почта
      info@mft-group.ru
      Адрес магазина
      г.Москва Мкад 23км влд10
      Мы в сети
      Подписаться на рассылку за 100 бонусов

      Мы не будем присылать вам спам. Только скидки и выгодные предложения

      Нажимая на кнопку «Подписаться», Вы даете согласие на обработку персональных данных.
      MFT24

      , 2025

      Ваш город: Не определено
      Владивосток
      Волгоград
      Воронеж
      Екатеринбург
      Казань
      Красноярск
      Москва
      Нижний Новгород
      Новосибирск
      Омск
      Пермь
      Ростов-на-Дону
      Самара
      Санкт-Петербург
      Саратов
      Уфа
      Хабаровск
      Челябинск