Сканер штрихкода
Наведите камеру на штрихкод
Меню
Корзина 00.00 р.
    Поддержка
    • 8-800-700-65-88

    Мы работаем для вас ежедневно:

    ПН: 9:00 - 18:00

    ВТ: 9:00 - 18:00

    СР: 9:00 - 18:00

    ЧТ: 9:00 - 18:00

    ПТ: 9:00 - 18:00

    СБ: 9:00 - 18:00

    ВС: 9:00 - 18:00

    Без перерывов на обед и выходных дней!

    Поддержка в мессенджере
    MFT24
    • 8-800-700-65-88
    • Обратный звонок
      Заказать обратный звонок
      Нажимая на кнопку «Отправить», Вы даете согласие на обработку персональных данных.
    Каталог
      Поиск
      • Blog
      • Контакты
      • О нас
      • Доставка и оплата
        • Блог
      • 8-800-700-65-88
      • Обратный звонок
      Заказать обратный звонок
      Нажимая на кнопку «Отправить», Вы даете согласие на обработку персональных данных.
      MFT24
      • @Металлист
      • LV
      • Выдвижные корзины для кухни
      • Газовые лифты
      • Замки для мебели
      • Каталог
      • Крепежная фурнитура
      • Кухонные аксессуары
      • Мебельные крючки
      • Мебельные опоры
      • Мебельные петли
      • Мебельные ручки
      • Мерч и рекламная продукция
      • Навесы для шкафов
      • Поддоны для выдвижных ящиков и органайзеры
      • Полкодержатели
      • Системы выдвижения
      • Системы отталкивания и демпфирования
      • Скобяные изделия
      • Сушки для посуды
      • Трубы и штангодержатели
      • ✹ Инструменты
      • ✹ Комплектующие для кухни
      • ✹ Мебельная фурнитура
      • ✹ Отопление
      • ✹ Садовый инвентарь
      • ✹ Товары для дома
      • ✹ ТОВАРЫ МАРКЕТПЛЕЙСА
      • ✹ Дверная фурнитура
      • Torg
      Каталог
      • Комплектующие
        • Комплектующие для вентиляции
        • Комплектующие для пластиковых окон
      • Мебельная фурнитура
        • Консоли
        • Крепежные пластины мебельные
        • Кронштейны
        • Крючки вешалки
        • Мебельные колеса, ролики
        • Механизмы мебельные (трансформации, поворота)
        • Петли мебельные
        • Пластиковые опоры
        • Подвески мебельные
        • Соединители мебельные, захваты, зацепы
        • Стяжки
        • Уголки
      • Перфорированный крепеж
        • Крепежные пластины
        • Крепежные уголки
        • Опора бруса
        • Соединительные пластины
      • Скобяные изделия
        • DIN-рейки
        • Дверные крючки
        • Держатели для гардин
        • Завертки, комплектующие деревянных окон и теплиц
        • Задвижки
        • Замки
        • Краб-системы
        • Крепеж для гипсокартона
        • Кронштейны для радиаторов отопления
        • Накладки дверные
        • Петли
        • Пробой ушко
        • Пружины
        • Рожки обувные
        • Ручки
        • Скобы строительные
        • Угольники
      Раздел: 1. Лицевая фурнитура
      • Раздел: Крючки
      • Раздел: Ручки
      Раздел: 10. Опоры мебельные
      • Раздел: Опоры для корпусной мебели
      • Раздел: Опоры для столов
      • Раздел: Опоры колесные
      • Раздел: Опоры кухонные
      • Раздел: Подпятники
      Раздел: 11. Комплектующие для изготовления столов
      • Раздел: Вентиляционные решетки
      • Раздел: Фурнитура для столов
      Раздел: 12. Кроватные основания и комплектующие
      • Раздел: Основания для кроватей
      • Раздел: Подъемные механизмы и газлифты для кроватных оснований
      • Раздел: Фурнитура для кроватей
      Раздел: 13. Клей
      • Раздел: Дисперсия, клеи для древесины
      • Раздел: Клей двухкомпонентный
      • Раздел: Клей расплав
      Раздел: 14. Кромочные материалы
      • Раздел: Канты
      • Раздел: Кромка
      Раздел: 15. Пластики HPL
      • Раздел: CLEAN TOUCH
      • Раздел: Rediance
      • Раздел: SYNCHRO
      • Раздел: Дерево
      • Раздел: Камень
      • Раздел: Металлики
      • Раздел: Однотонники
      • Раздел: Фантазия
      Раздел: 16. Плитные материалы
      • Раздел: Компакт ламинат
      • Раздел: Плита ЛДСП
      • Раздел: Плита МДФ
      • Раздел: Профиль МДФ декоративный
      Раздел: 17. Фасады Раздел: 18. Рамочный профиль для фасадов
      • Раздел: Алюминиевый рамочный профиль
      • Раздел: Профиль МДФ
      • Раздел: Уплотнитель для алюминиевого рамочного профиля
      Раздел: 19. Замки для мебели
      • Раздел: Замки
      • Раздел: Ключи и декоративные накладки
      • Раздел: Магниты и защёлки
      Раздел: 2. Освещение и Электрокомпоненты
      • Раздел: Аксессуары
      • Раздел: Блоки питания
      • Раздел: Выключатели
      • Раздел: Профиль для светодиодной ленты
      • Раздел: Розетки и зарядные устройства Электронные системы управления
        • Раздел: Розетки и зарядные устройства
      • Раздел: Светильники
      • Раздел: Светодиодная лента
      • Раздел: Устройства управления
      Раздел: 20. Крепежная и соединительная фурнитура
      • Раздел: Анкерный крепеж
      • Раздел: Гвозди
      • Раздел: Дюбель
      • Раздел: Заглушки
      • Раздел: Кляймеры
      • Раздел: Крепеж сантехнический
      • Раздел: Метрический крепеж
      • Раздел: Навесы кухонные
      • Раздел: Перфокрепеж
      • Раздел: Полкодержатели
      • Показать все
      Раздел: 21. Инструменты и оборудование
      • Раздел: Биты
      • Раздел: Зажимной инструмент
      • Раздел: Измерительный инструмент
      • Раздел: Кондукторы и шаблоны
      • Раздел: Наборы инструментов
      • Раздел: Органайзеры и кейсы
      • Раздел: Отвертки и ключи
      • Раздел: Пилки для электролобзика
      • Раздел: Разное
      • Раздел: Режущий инструмент
      • Показать все
      Раздел: 22. Трубы и элементы крепления
      • Раздел: Комплектующие для труб
      • Раздел: Система Joker и UNO
      • Раздел: Трубы
      Раздел: 23. Упаковочный материал
      • Раздел: Скотч
      • Раздел: Стрейч-пленка
      • Раздел: Упаковочная лента
      Раздел: 24. Реставрационные материалы
      • Раздел: Воск мебельный и напольный
      • Раздел: Карандаши и маркеры
      • Раздел: Лак
      • Раздел: Материалы для кожи
      • Раздел: Шпатлевка мебельная
      • Раздел: Штрихи и ретуши
      Раздел: 25. Механизмы трансформации Раздел: 26. Аксессуары для ванных комнат Раздел: 27. Товары для сада и отдыха Раздел: 28. Декор
      • Раздел: Шпон натурального камня
      Раздел: 29. Рекламная продукция Раздел: 3. Гардеробные системы и системы хранения
      • Раздел: Гардеробная система
        • Раздел: Гардеробная система
      • Раздел: Домашнее хранение
      • Раздел: Каркасно-модульная система "ЛОФТ"
      • Раздел: Наполнение для шкафов
        • Раздел: Выдвижные штанги и вешала
        • Раздел: Гладильные доски
        • Раздел: Зеркала
        • Раздел: Пантографы
        • Раздел: Сетчатые полки
        • Раздел: Штанги и комплектующие
      • Раздел: Стеллажная система
      Раздел: 4. Столешницы и стеновые панели
      • Раздел: Кромка для столешниц
        • Раздел: Classic
        • Раздел: Premium
        • Раздел: Premium+
        • Раздел: Special Edition
        • Раздел: Standart-Pro
        • Раздел: Universal
      • Раздел: Мебельные щиты
        • Раздел: Classic
        • Раздел: Premium
        • Раздел: Premium+
        • Раздел: Special Edition
        • Раздел: Standart-Pro
        • Раздел: Universal
      • Раздел: Планки и комплектующие
      • Раздел: Пристеночные бортики
      • Раздел: Столешницы
        • Раздел: Коллекция столешниц Classic
        • Раздел: Коллекция столешниц Premium
        • Раздел: Коллекция столешниц Premium+
        • Раздел: Коллекция столешниц Special Edition
        • Раздел: Коллекция столешниц Standart-Pro
        • Раздел: Коллекция столешниц Universal
      Раздел: 5. Кухонные мойки и смесители
      • Раздел: Аксессуары для моек
        • Раздел: Измельчители отходов
        • Раздел: Корзинки и доски для кухонных моек
        • Раздел: Сливная арматура и фильтры
      • Раздел: Дозаторы
      • Раздел: Кухонные мойки
        • Раздел: Гранитные мойки
        • Раздел: Мойки из нержавеющей стали
      • Раздел: Смесители
      Раздел: 6. Кухонное наполнение и аксессуары
      • Раздел: Барные трубы D50 и аксессуары
      • Раздел: Выдвижные корзины
      • Раздел: Контейнеры для отходов
      • Раздел: Посудосушители, лотки
      • Раздел: Разное/кухонные аксессуары
      • Раздел: Рейлинги и комплектующие
      • Раздел: Цоколь кухонный
      Раздел: 7. Механизмы для открывания фасадов
      • Раздел: Амортизаторы
      • Раздел: Газовые лифты
      • Раздел: Кронштейны механические
      • Раздел: Петли
      • Раздел: Подъемные механизмы
      Раздел: 8. Системы выдвижения
      • Раздел: Выдвижные ящики
        • Раздел: AXIS PRO
        • Раздел: Boyard СТАРТ
        • Раздел: Firmax Newline
        • Раздел: Firmax Slimline
        • Раздел: Firmax Smartline
        • Раздел: GRASS DWD XP
        • Раздел: GRASS Nova Pro
        • Раздел: Hafele Matrix Box
        • Раздел: Hafele Moovit
        • Раздел: Hafele Moovit MX
        • Раздел: Hettich ArciTech
        • Раздел: Hettich AvanTech You
        • Раздел: Hettich Inno Tech
        • Раздел: Hettich Inno Tech Atira
        • Раздел: Modern Box
      • Раздел: Металлобоксы
      • Раздел: Направляющие
        • Раздел: Направляющие скрытого монтажа
        • Раздел: Пластиковые направляющие
        • Раздел: Роликовые направляющие
        • Раздел: Шариковые направляющие
      Раздел: 9. Шкафные системы: раздвижные и складные двери
      • Раздел: Классические двери-купе Аристо
      • Раздел: ПРОФИАЛ
      • Раздел: Прочие комплектующие
      • Раздел: Системы GTV
      • Раздел: Системы Hafele
        • Раздел: Hangroller 50
        • Раздел: Slido Classic
        • Раздел: Slido Eclipse
        • Раздел: Фурнитура для поворотных дверей
      • Раздел: Системы Hettich
        • Раздел: Slide Line
        • Раздел: SysLine
        • Раздел: Top Line
        • Раздел: Wing Line
        • Раздел: КА 5740
      • Раздел: Системы Аристо
        • Раздел: Grace Aristo
        • Раздел: Nova Aristo
        • Раздел: QB
        • Раздел: Slim line, Slim Max
        • Раздел: Система 4 в 1
        • Раздел: Система БРАВО
        • Раздел: Система СТАНДАРТ
        • Раздел: Система ЭКО
      • Раздел: СКМ и Дабл, CT-147 и CT-148
      Мебельная фурнитура Перфорированный крепеж Скобяные изделия
      • Петли
        • Петли-стрелы
      • Ручки
      Метизы Стяжки
      Амортизаторы и толкатели Магнитные держатели
      Замки
      Трубы Штангодержатели
      ✹ Автомобильный инструмент
      • ✹ Аксессуары автомобильные
        • ✹ Антибуксы
        • ✹ Ареометры
        • ✹ Воронки
        • ✹ Держатели телефонов и планшетов
        • ✹ Канистры для топлива
        • ✹ Пакеты для шин
        • ✹ Провода стартовые
        • ✹ Резинки багажные
        • ✹ Ремни багажные
        • ✹ Салфетки и губки
        • ✹ Тросы буксировочные
        • ✹ Удобства в автомобиле
        • ✹ Щетки стеклоочистителя
      • ✹ Домкраты
        • ✹ Домкраты гидравлические бутылочные
        • ✹ Домкраты гидравлические подкатные
        • ✹ Домкраты механические бутылочные
        • ✹ Домкраты реечные
        • ✹ Домкраты ромбовые
        • ✹ Домкраты электрогидравлические
      • ✹ Компрессоры автомобильные
      • ✹ Лебедки автомобильные
      • ✹ Масленки
      • ✹ Мебель гаражная
      • ✹ Насосы гидравлические
      • ✹ Пневмоинструмент
        • ✹ Гайковерты пневматические
        • ✹ Дрели пневматические
        • ✹ Заклепочники пневматические
        • ✹ Краскораспылители
        • ✹ Молотки пневматические
        • ✹ Нейлеры пневматические
        • ✹ Пистолеты пневматические
        • ✹ Пневмоинструмент (аксессуары)
        • ✹ Степлеры пневматические
        • ✹ Трещотки пневматические
        • ✹ Хоппер ковши
        • ✹ Шлифовальные машины
        • ✹ Шуруповерты пневматические
      • ✹ Поддоны для сбора масла
      • ✹ Подставки под машину регулируемые
      • Показать все
      ✹ Измерительный инструмент
      • ✹ Гидроуровни
      • ✹ Дальномеры
      • ✹ Измерительные колеса
      • ✹ Линейки
      • ✹ Микрометры
      • ✹ Рулетки
      • ✹ Рулетки геодезические
      • ✹ Угольники
      • ✹ Уровни
        • ✹ Уровни алюминиевые
        • ✹ Уровни пластмассовые
      • ✹ Уровни лазерные
        • ✹ Аксессуары для лазерных уровней
      • Показать все
      ✹ Крепежный инструмент
      • ✹ Гвозди для мебельного степлера
      • ✹ Дюбели
      • ✹ Дюбель-гвозди
      • ✹ Заклепки
      • ✹ Заклепочники
      • ✹ Крепеж перфорированный
        • ✹ Анкеры регулируемые
        • ✹ Кляймеры
        • ✹ Крабы соединительные
        • ✹ Ленты
        • ✹ Мебельный крепеж
        • ✹ Опоры бруса
        • ✹ Пластины
        • ✹ Подвесы
        • ✹ Проушины прямы
        • ✹ Проушины угловые
        • ✹ Уголки
      • ✹ Кронштейны
        • ✹ Кронштейны декоративные
        • ✹ Кронштейны угловые
        • ✹ Кронштейны усиленные
      • ✹ Наборы крепежных изделий
      • ✹ Проволока
        • ✹ Проволока из нержавеющей стали
        • ✹ Проволока с ПВХ покрытием
        • ✹ Проволока стальная оцинкованная
      • ✹ Саморезы
      • Показать все
      ✹ Отделочный инструмент
      • ✹ Аксессуары для плиткорезов
      • ✹ Валики
        • ✹ Бюгели
        • ✹ Валики игольчатые
        • ✹ Валики прижимные
        • ✹ Валики с ручкой
        • ✹ Шубки для валиков
      • ✹ Ведра строительные
      • ✹ Гладилки
      • ✹ Захваты строительные
      • ✹ Инструмент для затирки швов
      • ✹ Инструмент для нанесения декоративных покрытий
      • ✹ Инструмент по газо и пенобетону
      • ✹ Инструмент по гипсокартону
      • ✹ Карандаши строительные
      • Показать все
      ✹ Прочий инструмент
      • ✹ Горелки газовые
      • ✹ Замки
        • ✹ Навесные
        • ✹ Накладные и врезные
        • ✹ Тросовые и цепные
      • ✹ Изделия канатно-веревочные
        • ✹ Веревки
        • ✹ Канаты
        • ✹ Наборы шпагатов
        • ✹ Нити
        • ✹ Фалы
        • ✹ Шнуры
        • ✹ Шпагаты
      • ✹ Инструмент для пайки
        • ✹ Выжигатели по дереву
        • ✹ Материалы и принадлежности для пайки
        • ✹ Наборы для пайки
        • ✹ Наборы пинцетов
        • ✹ Пасты
        • ✹ Паяльники электрические
        • ✹ Припой
      • ✹ Инструмент для прочистки труб
      • ✹ Клеевые пистолеты
      • ✹ Клеевые стержни
      • ✹ Лампы паяльные, керосиновые
      • ✹ Лестницы
      • ✹ Лупы
      • Показать все
      ✹ Режущий инструмент
      • ✹ Болторезы и труборезы
        • ✹ Болторезы
        • ✹ Труборезы
      • ✹ Буры и насадки для перфоратора
        • ✹ Буры
        • ✹ Коронки
        • ✹ Насадки
      • ✹ Диски алмазные отрезные
      • ✹ Диски пильные
      • ✹ Диски универсальные
      • ✹ Круги и диски абразивные
        • ✹ Круги абразивные на ворсовой подложке
        • ✹ Круги и диски полировальные
        • ✹ Круги лепестковые радиальные (с оправкой)
        • ✹ Круги лепестковые торцевые
        • ✹ Круги отрезные и зачистные армированные
        • ✹ Круги шлифовальные гибкие
        • ✹ Круги шлифовальные для точила
        • ✹ Треугольники абразивные на ворсовой подложке
      • ✹ Ленты абразивные (для шлифмашин)
      • ✹ Насадки для многофункционального инструмента (МФИ)
      • ✹ Ножи
        • ✹ Лезвия для ножей
        • ✹ Ножи для резки напольных покрытий
        • ✹ Ножи для резки обоев
        • ✹ Ножи для резки теплоизоляции
        • ✹ Ножи кухонные
        • ✹ Ножи строительные
        • ✹ Ножи туристические
      • ✹ Ножи для электрических рубанков
      • Показать все
      ✹ Силовое оборудование
      • ✹ Аккумуляторный инструмент
        • ✹ Батареи аккумуляторные
        • ✹ Гайковерты ударные аккумуляторные
        • ✹ Дрели-шуруповерты аккумуляторные
        • ✹ Зарядные устройства
        • ✹ Лобзики аккумуляторные
        • ✹ Машинки для укладки плитки
        • ✹ МФИ аккумуляторные
        • ✹ Отвертки аккумуляторные
        • ✹ Перфораторы аккумуляторные
        • ✹ Сабельные пилы аккумуляторные
        • ✹ УШМ аккумуляторные
        • ✹ Циркулярные пилы аккумуляторные
        • ✹ Шлифовальные машины аккумуляторные
      • ✹ Аксессуары для бензорезов
      • ✹ Аксессуары для бетоносмесителей
        • ✹ Венцы
        • ✹ Ремни
        • ✹ Чехлы
        • ✹ Шестерни
      • ✹ Аксессуары для виброплит
      • ✹ Аксессуары для генераторов
      • ✹ Аксессуары для измельчителей садовых
        • ✹ Ножи сменные
      • ✹ Аксессуары для моечных машин высокого давления
      • ✹ Аксессуары для мотобуров
        • ✹ Удлинители для шнеков
        • ✹ Шнеки
      • ✹ Аксессуары для насосов
      • ✹ Аксессуары для сварки
        • ✹ Горелки сварочные
        • ✹ Держатели электродов
        • ✹ Клеммы
        • ✹ Наконечники токосъемные
        • ✹ Подающие ролики
        • ✹ Сопла газовые
        • ✹ Фиксаторы магнитные
        • ✹ Цангодержатели
        • ✹ Электроды
      • Показать все
      ✹ Слесарный инструмент
      • ✹ Биты
        • ✹ Адаптеры и переходники
        • ✹ Биты наборы
        • ✹ Биты с торцевыми головками
      • ✹ Бокорезы, кусачки
      • ✹ Воротки, удлинители, переходники
        • ✹ Воротки
        • ✹ Переходники
        • ✹ Шарниры карданные
      • ✹ Выколотки
      • ✹ Головки сменные
        • ✹ Головки многоразмерные
        • ✹ Головки с битой
        • ✹ Головки свечные
        • ✹ Головки торцевые
        • ✹ Головки ударные
        • ✹ Головки удлиненные
      • ✹ Длинногубцы
        • ✹ Длинногубцы изогнутые
        • ✹ Длинногубцы прямые
        • ✹ Длинногубцы, двойной рычажный механизм
      • ✹ Зажимы с фиксатором
      • ✹ Зубила
      • ✹ Инструменты для зачистки и обжима
      • ✹ Киянки
        • ✹ Киянки деревянные
        • ✹ Киянки резиновые
      • Показать все
      ✹ Столярный инструмент
      • ✹ Верстаки
      • ✹ Долота и стамески
        • ✹ Долота-стамески
        • ✹ Долота-стамески наборы
        • ✹ Стамески
        • ✹ Стамески наборы
      • ✹ Кирки
      • ✹ Ломы и гвоздодеры
        • ✹ Гвоздодеры
        • ✹ Ломы строительные
      • ✹ Ножовки
        • ✹ Ножовки по гипсокартону
        • ✹ Ножовки по дереву
        • ✹ Ножовки по пенобетону
      • ✹ Пилы
      • ✹ Резцы по дереву
      • ✹ Струбцины
        • ✹ Струбцины F-образные
        • ✹ Струбцины G-образные
        • ✹ Струбцины клещеобразные
        • ✹ Струбцины ленточные
        • ✹ Струбцины угловые
        • ✹ Стурбцины быстрозажимные
      • ✹ Стусла
        • ✹ Пилы для стусла
        • ✹ Полотна для прецизионного стусла
        • ✹ Стусла пластиковые
        • ✹ Стусла прецизионные
      • ✹ Топоры и колуны
        • ✹ Колуны
        • ✹ Рукоятки для колунов
        • ✹ Топорища
        • ✹ Топоры
      ✹ Бокалодержатели ✹ Выкатные корзины
      ✹ Лотки для столовых приборов ✹ Сушки для посуды
      ✹ Амортизаторы и толкатели ✹ Крепежная фурнитура
      • ✹ Кронштейны для полок
      ✹ Крючки мебельные ✹ Мебельные замки
      ✹ Навесы мебельные ✹ Направляющие мебельные ✹ Опоры для столов ✹ Опоры колесные
      ✹ Опоры мебельные ✹ Петли мебельные
      • ✹ Петли для стекла
      • ✹ Петли карточные
      • ✹ Петли мебельные четырехшарнирные
      • ✹ Петли секретерная
      ✹ Подъемные механизмы ✹ Ручки мебельные
      • ✹ Ручки мебельные-кнопки
      - Радиаторы отопления
      • ЗАЩИТНЫЕ ЭКРАНЫ И КРОНШТЕЙНЫ ДЛЯ РАДИАТОРОВ
      • КОМПЛЕКТУЮЩИЕ ДЛЯ РАДИАТОРОВ ОТОПЛЕНИЯ
      БАКИ РАСШИРИТЕЛЬНЫЕ ВОЗДУХООТВОДЧИКИ И ГРУППЫ БЕЗОПАСНОСТИ ТЕПЛЫЙ ПОЛ (ЭЛЕКТРИЧЕСКИЙ) УЗЛЫ ПОДКЛЮЧЕНИЯ, ВЕНТИЛИ, РЕГУЛЯТОРЫ ТЕМПЕРАТУРЫ
      ✹ Адаптеры, переходники
      • ✹ Адаптеры алюминиевые
      • ✹ Адаптеры латунные
      • ✹ Адаптеры пласмассовые
      • ✹ Муфты алюминиевые
      • ✹ Муфты латунные
      • ✹ Муфты пластмассовые
      • ✹ Переходники латунные
      • ✹ Переходники пластмассовые
      • ✹ Разветвители латунные
      • ✹ Разветвители пластмассовые
      • Показать все
      ✹ Баки ✹ Буры садовые
      • ✹ Буры лопастные
      • ✹ Буры шнековые
      • ✹ Удлинители
      ✹ Ведра, тазы оцинкованные
      • ✹ Ведра оцинкованные
      • ✹ Тазы оцинкованные
      ✹ Вилы
      • ✹ Вилы садово-огородные
      • ✹ Вилы сенные
      ✹ Воздуходувки
      • ✹ Воздуходувки аккумуляторные
      • ✹ Воздуходувки бензиновые
      ✹ Газонокосилки
      • Газонокосилки аккумуляторные
      • ✹ Газонокосилки аккумуляторные
      • ✹ Газонокосилки бензиновые
      • ✹ Газонокосилки электрические
      • ✹ Ножи для газонокосилок
      ✹ Грабли
      • ✹ Грабли веерные
      • ✹ Грабли классические
      ✹ Дровоколы ✹ Душ садовый ✹ Зонты ✹ Измельчители ✹ Кашпо
      • ✹ Вкладыши
      • ✹ Кашпо подвесные
      • ✹ Кашпо пристенные
      • ✹ Кронштейны для кашпо
      • ✹ Цепочки для кашпо
      ✹ Колеса промышленные ✹ Косы
      • ✹ Комплектующие для кос
      • ✹ Косы-литовки
      • ✹ Косы-секачи
      • ✹ Косы-серпаны
      ✹ Культиваторы, аэраторы ✹ Ледоступы, ледянки
      ✹ Лейки ✹ Лопаты
      • Лопаты автомобильные, походные
      • ✹ Лопаты автомобильные, походные
      • ✹ Лопаты без черенка
      • ✹ Лопаты с деревянным черенком
      • ✹ Лопаты с металлическим черенком
      • ✹ Лопаты с фибергласовым черенком
      ✹ Мачете ✹ Мебель для пикника ✹ Мелкий садовый инструмент
      • ✹ Конусы посадочные
      • ✹ Корнеудалители
      • ✹ Мотыжки
      • ✹ Наборы мелкого садового инструмента
      • ✹ Рыхлители
      • ✹ Серия Classic
      • ✹ Серия Connect
      • ✹ Серия Era
      • ✹ Серия Ergo
      • ✹ Серия Flower green
      • Показать все
      ✹ Метлы, веники
      • ✹ Веники
      • ✹ Метлы
      ✹ Мотыги, полольники, кетмени
      • ✹ Кетмени
      • ✹ Мотыги из нержавеющей стали
      • ✹ Мотыги стальные
      • ✹ Полольники
      ✹ Насадки для полива
      • ✹ Дождеватели
      • ✹ Наборы
      • ✹ Пистолеты - распылители
      • ✹ Распылители
      • ✹ Распылители на штанге
      ✹ Настенные держатели ✹ Ножи садовые
      • ✹ Копулировочные
      • ✹ Универсальные
      ✹ Ножницы садовые
      • ✹ Газонные ножницы
      • ✹ Кусторезы
      • ✹ Садовые ножницы и кусторезы аккумуляторные
      ✹ Ножовки, пилы садовые ✹ Одежда, защита рук
      • ✹ Перчатки хозяйственные
      • ✹ Плащи-дождевики
      • ✹ Рукавицы
      • ✹ Садовые перчатки
      • ✹ Шапки
      ✹ Опрыскиватели
      • ✹ Опрыскиватели аккумуляторные
      • ✹ Опрыскиватели бензиновые
      • ✹ Опрыскиватели ручные
      ✹ Парники, теплицы
      • ✹ Комплектующие к парникам
      • ✹ Парники
      ✹ Пленки, укрывные материалы
      • ✹ Защита
      • ✹ Колышки
      • ✹ Пленка
      • ✹ Укрывной материал
      ✹ Плоскорезы
      ✹ Приготовление пищи
      • ✹ Аксессуары
      • ✹ Барбекю
      • ✹ Коптильни
      • ✹ Мангалы
      • ✹ Решетки-гриль
      • ✹ Топливо
      • ✹ Шампуры
      ✹ Приспособления для рассады ✹ Садовые аксессуары ✹ Садовые ограждения
      • ✹ Арки садовые
      • ✹ Бордюрные ленты
      • ✹ Бордюры садовые
      • ✹ Заборы декоративные
      • ✹ Кустодержатели
      • ✹ Опоры для поддержки веток деревьев
      • ✹ Опоры для растений
      • ✹ Опоры для цветов
      • ✹ Поддержки для растений
      • ✹ Решетки заборные
      • Показать все
      ✹ Секаторы
      • ✹ Для топиария и бонсай
      • ✹ Прививочные
      • ✹ Секаторы аккумуляторные
      • ✹ Цветочные
      ✹ Серпы ✹ Сетки газонные ✹ Скарификаторы ✹ Снегоуборочный инвентарь
      • ✹ Водосгоны для пола
      • ✹ Движки, скреперы
      • ✹ Ледорубы, скребки
      • ✹ Лопаты снеговые автомобильные
      • ✹ Лопаты снеговые без черенка
      • ✹ Лопаты снеговые с черенком
      ✹ Сучкорезы
      • ✹ Прямого реза
      • ✹ С наковальней
      • ✹ Штанговые
      ✹ Таймеры для полива ✹ Тачки, тележки, носилки
      • ✹ Колеса и камеры для тачки
      • ✹ Носилки
      • ✹ Тачки
      • ✹ Тележки
      ✹ Товары для пикника
      • ✹ Аккумуляторы холода
      • ✹ Бутылки
      • ✹ Наборы посуды
      • ✹ Стаканы
      • ✹ Термосумки
      ✹ Триммеры
      • ✹ Аксессуары для триммеров
      • ✹ Диски для триммеров
      • ✹ Катушки для триммеров
      • ✹ Леска для триммеров
      • ✹ Триммеры аккумуляторные
      • ✹ Триммеры бензиновые
      • ✹ Триммеры электрические
      ✹ Умывальники ✹ Цветочные горшки ✹ Черенки, рукоятки
      • ✹ Рукоятки
      • ✹ Черенки без резьбы
      • ✹ Черенки с резьбой
      ✹ Шланги, катушки
      • ✹ Катушки для шлангов
      • ✹ Шланги
      ✹ Декор для дома
      • Вазы
      • Предметы декора для интерьера
        • Фоторамки
        • Шкатулки и держатели для украшений
      • ✹ Аромадиффузоры и свечи
      • ✹ Искусственные цветы и сухоцветы
      • ✹ Часы
      ✹ Домашнее хранение
      • ✹ Пластиковые короба и корзины
      ---МП__ОФИСНЫЕ КОЛЕСА Детские товары
      • Безопасность ребенка
        • Защитный уголок
      Дом и сад
      • Аксессуары для бани и ванной
        • Держатель для полотенец
        • Держатель для туалетной бумаги
        • Крючок для ванной
      • Аксессуары для приготовления пищи
        • Держатель кухонный
      • Вешалки для одежды
        • Крючок для одежды
      • Декор и интерьер
        • Стоппер для двери
        • Цифры для двери
      • Хранение вещей
        • Органайзер для вещей
      • Шторы и карнизы
        • Аксессуар для штор
      Канцелярские товары
      • Канцелярия
        • Подставка для ручек, карандашей
      Красота и гигиена
      • Инструменты для макияжа, маникюра, бани и солярия
        • Брашинг
        • Зеркало косметическое
        • Маникюрные щипцы
        • Набор инструментов для маникюра
        • Ножницы маникюрные
        • Пилка для маникюра
      Мебель
      • Мебельная фурнитура и комплектующие
        • Держатель для полки
      Строительство и ремонт
      • Арматура и аксессуары для сантехники
        • Фильтр для душа
      • Грузоподъемное оборудование
        • Колесо промышленное
      • Крепеж и фурнитура
        • Комплектующие для москитных сеток
      • Ручки, замки и фурнитура
        • Газлифт мебельный
        • Задвижка
        • Замок
        • Мебельное колесо
        • Направляющие
        • Ножка для мебели
        • Петля мебельная
        • Протектор для мебели
        • Ручка мебельная
      • Смесители и душевые системы
        • Лейка для душа
        • Шланг для душа
      Электроника
      • Кронштейны
        • Кронштейн для монитора
        • Кронштейн для ТВ
        • Подставка для ноутбука
      ✹ Глазки дверные ✹ Дверные доводчики
      • ✹ Гидравлические дверные доводчики
      • ✹ Дверные доводчики с скользящей тягой
      • ✹ Пружинные и пневматические дверные доводчики
      ✹ Дверные замки, механизмы
      • ✹ Задвижки для межкомнатных дверей
      • ✹ Замки врезные на деревянные двери
      • ✹ Замки врезные на металлические двери
      • ✹ Замки межкомнатные
      • ✹ Замки накладные для деревянных дверей
      • ✹ Замки накладные на металлические двери
      • ✹ Замки узкопрофильные
      • ✹ Фиксаторы
      ✹ Дверные петли
      • ✹ Дверные петли для деревянных дверей
      • ✹ Дверные петли приварные
      • ✹ Петли-стрелы
      ✹ Дверные ручки
      • ✹ Дверные ручки для Китайских дверей
      • ✹ Дверные ручки для ПВХ дверей
      • ✹ Дверные ручки защелки
      • ✹ Дверные ручки комплектом межкомнатные
      • ✹ Дверные ручки на планке
      • ✹ Дверные ручки раздельные
      • ✹ Дверные ручки-кнопки
      • ✹ Дверные ручки-скобы
      • ✹ Дверные ручки комплектом
      ✹ Замки навесные
      • ✹ Багажные навесные замки
      • ✹ Замки велосипедные тросовые
      • ✹ Замки влагозащищенные
      • ✹ Замки общего назначения
      ✹ Засовы и задвижки ✹ Комплектующие к дверным ручкам
      • ✹ Завертки к дверным ручкам
      • ✹ Накладка на сувальдные замки
      • ✹ Накладка на цилиндровые замки
      ✹ Ограничители, стопперы ✹ Ответные планки для замков и защелок
      ✹ Почтовые замки ✹ Цилиндровые механизмы
      • ✹ Цилиндровые механизмы Ключ-Вертушка
      • ✹ Цилиндровые механизмы Ключ-Ключ
      • ✹ Цилиндровые механизмы сантехнические
      ✹ Цифры дверные ✹ Ящики почтовые
      Главная
      • Каталог товаров промышленного назначения
        • Колеса и колесные опоры
        • Кухонные аксессуары
        • Лестницы
        • Мебельная фурнитура
        • Мойки из нержавейки
        • Системы на основе труб
        • Складское оборудование и техника
        • СПЕЦ Колеса
      Каталог
      • Мебельная фурнитура
      Мебельная фурнитура
      Корзина 00.00 р.
      Корзина
      Ваша корзина пуста!
      • ✹ Дверная фурнитура
        ✹ Глазки дверные ✹ Дверные доводчики
        • ✹ Гидравлические дверные доводчики
        • ✹ Дверные доводчики с скользящей тягой
        • ✹ Пружинные и пневматические дверные доводчики
        ✹ Дверные замки, механизмы
        • ✹ Задвижки для межкомнатных дверей
        • ✹ Замки врезные на деревянные двери
        • ✹ Замки врезные на металлические двери
        • ✹ Замки межкомнатные
        • ✹ Замки накладные для деревянных дверей
        • ✹ Замки накладные на металлические двери
        • ✹ Замки узкопрофильные
        • ✹ Фиксаторы
        ✹ Дверные петли
        • ✹ Дверные петли для деревянных дверей
        • ✹ Дверные петли приварные
        • ✹ Петли-стрелы
        ✹ Дверные ручки
        • ✹ Дверные ручки для Китайских дверей
        • ✹ Дверные ручки для ПВХ дверей
        • ✹ Дверные ручки защелки
        • ✹ Дверные ручки комплектом межкомнатные
        • ✹ Дверные ручки на планке
        • ✹ Дверные ручки раздельные
        • ✹ Дверные ручки-кнопки
        • ✹ Дверные ручки-скобы
        • ✹ Дверные ручки комплектом
        ✹ Замки навесные
        • ✹ Багажные навесные замки
        • ✹ Замки велосипедные тросовые
        • ✹ Замки влагозащищенные
        • ✹ Замки общего назначения
        ✹ Засовы и задвижки ✹ Комплектующие к дверным ручкам
        • ✹ Завертки к дверным ручкам
        • ✹ Накладка на сувальдные замки
        • ✹ Накладка на цилиндровые замки
        ✹ Ограничители, стопперы ✹ Ответные планки для замков и защелок
        ✹ Почтовые замки ✹ Цилиндровые механизмы
        • ✹ Цилиндровые механизмы Ключ-Вертушка
        • ✹ Цилиндровые механизмы Ключ-Ключ
        • ✹ Цилиндровые механизмы сантехнические
        ✹ Цифры дверные ✹ Ящики почтовые
      • ✹ Садовый инвентарь
        ✹ Адаптеры, переходники
        • ✹ Адаптеры алюминиевые
        • ✹ Адаптеры латунные
        • ✹ Адаптеры пласмассовые
        • ✹ Муфты алюминиевые
        • ✹ Муфты латунные
        • ✹ Муфты пластмассовые
        • ✹ Переходники латунные
        • ✹ Переходники пластмассовые
        • ✹ Разветвители латунные
        • ✹ Разветвители пластмассовые
        • Показать все
        ✹ Баки ✹ Буры садовые
        • ✹ Буры лопастные
        • ✹ Буры шнековые
        • ✹ Удлинители
        ✹ Ведра, тазы оцинкованные
        • ✹ Ведра оцинкованные
        • ✹ Тазы оцинкованные
        ✹ Вилы
        • ✹ Вилы садово-огородные
        • ✹ Вилы сенные
        ✹ Воздуходувки
        • ✹ Воздуходувки аккумуляторные
        • ✹ Воздуходувки бензиновые
        ✹ Газонокосилки
        • Газонокосилки аккумуляторные
        • ✹ Газонокосилки аккумуляторные
        • ✹ Газонокосилки бензиновые
        • ✹ Газонокосилки электрические
        • ✹ Ножи для газонокосилок
        ✹ Грабли
        • ✹ Грабли веерные
        • ✹ Грабли классические
        ✹ Дровоколы ✹ Душ садовый ✹ Зонты ✹ Измельчители ✹ Кашпо
        • ✹ Вкладыши
        • ✹ Кашпо подвесные
        • ✹ Кашпо пристенные
        • ✹ Кронштейны для кашпо
        • ✹ Цепочки для кашпо
        ✹ Колеса промышленные ✹ Косы
        • ✹ Комплектующие для кос
        • ✹ Косы-литовки
        • ✹ Косы-секачи
        • ✹ Косы-серпаны
        ✹ Культиваторы, аэраторы ✹ Ледоступы, ледянки
        ✹ Лейки ✹ Лопаты
        • Лопаты автомобильные, походные
        • ✹ Лопаты автомобильные, походные
        • ✹ Лопаты без черенка
        • ✹ Лопаты с деревянным черенком
        • ✹ Лопаты с металлическим черенком
        • ✹ Лопаты с фибергласовым черенком
        ✹ Мачете ✹ Мебель для пикника ✹ Мелкий садовый инструмент
        • ✹ Конусы посадочные
        • ✹ Корнеудалители
        • ✹ Мотыжки
        • ✹ Наборы мелкого садового инструмента
        • ✹ Рыхлители
        • ✹ Серия Classic
        • ✹ Серия Connect
        • ✹ Серия Era
        • ✹ Серия Ergo
        • ✹ Серия Flower green
        • Показать все
        ✹ Метлы, веники
        • ✹ Веники
        • ✹ Метлы
        ✹ Мотыги, полольники, кетмени
        • ✹ Кетмени
        • ✹ Мотыги из нержавеющей стали
        • ✹ Мотыги стальные
        • ✹ Полольники
        ✹ Насадки для полива
        • ✹ Дождеватели
        • ✹ Наборы
        • ✹ Пистолеты - распылители
        • ✹ Распылители
        • ✹ Распылители на штанге
        ✹ Настенные держатели ✹ Ножи садовые
        • ✹ Копулировочные
        • ✹ Универсальные
        ✹ Ножницы садовые
        • ✹ Газонные ножницы
        • ✹ Кусторезы
        • ✹ Садовые ножницы и кусторезы аккумуляторные
        ✹ Ножовки, пилы садовые ✹ Одежда, защита рук
        • ✹ Перчатки хозяйственные
        • ✹ Плащи-дождевики
        • ✹ Рукавицы
        • ✹ Садовые перчатки
        • ✹ Шапки
        ✹ Опрыскиватели
        • ✹ Опрыскиватели аккумуляторные
        • ✹ Опрыскиватели бензиновые
        • ✹ Опрыскиватели ручные
        ✹ Парники, теплицы
        • ✹ Комплектующие к парникам
        • ✹ Парники
        ✹ Пленки, укрывные материалы
        • ✹ Защита
        • ✹ Колышки
        • ✹ Пленка
        • ✹ Укрывной материал
        ✹ Плоскорезы
        ✹ Приготовление пищи
        • ✹ Аксессуары
        • ✹ Барбекю
        • ✹ Коптильни
        • ✹ Мангалы
        • ✹ Решетки-гриль
        • ✹ Топливо
        • ✹ Шампуры
        ✹ Приспособления для рассады ✹ Садовые аксессуары ✹ Садовые ограждения
        • ✹ Арки садовые
        • ✹ Бордюрные ленты
        • ✹ Бордюры садовые
        • ✹ Заборы декоративные
        • ✹ Кустодержатели
        • ✹ Опоры для поддержки веток деревьев
        • ✹ Опоры для растений
        • ✹ Опоры для цветов
        • ✹ Поддержки для растений
        • ✹ Решетки заборные
        • Показать все
        ✹ Секаторы
        • ✹ Для топиария и бонсай
        • ✹ Прививочные
        • ✹ Секаторы аккумуляторные
        • ✹ Цветочные
        ✹ Серпы ✹ Сетки газонные ✹ Скарификаторы ✹ Снегоуборочный инвентарь
        • ✹ Водосгоны для пола
        • ✹ Движки, скреперы
        • ✹ Ледорубы, скребки
        • ✹ Лопаты снеговые автомобильные
        • ✹ Лопаты снеговые без черенка
        • ✹ Лопаты снеговые с черенком
        ✹ Сучкорезы
        • ✹ Прямого реза
        • ✹ С наковальней
        • ✹ Штанговые
        ✹ Таймеры для полива ✹ Тачки, тележки, носилки
        • ✹ Колеса и камеры для тачки
        • ✹ Носилки
        • ✹ Тачки
        • ✹ Тележки
        ✹ Товары для пикника
        • ✹ Аккумуляторы холода
        • ✹ Бутылки
        • ✹ Наборы посуды
        • ✹ Стаканы
        • ✹ Термосумки
        ✹ Триммеры
        • ✹ Аксессуары для триммеров
        • ✹ Диски для триммеров
        • ✹ Катушки для триммеров
        • ✹ Леска для триммеров
        • ✹ Триммеры аккумуляторные
        • ✹ Триммеры бензиновые
        • ✹ Триммеры электрические
        ✹ Умывальники ✹ Цветочные горшки ✹ Черенки, рукоятки
        • ✹ Рукоятки
        • ✹ Черенки без резьбы
        • ✹ Черенки с резьбой
        ✹ Шланги, катушки
        • ✹ Катушки для шлангов
        • ✹ Шланги
      • ✹ Инструменты
        ✹ Автомобильный инструмент
        • ✹ Аксессуары автомобильные
          • ✹ Антибуксы
          • ✹ Ареометры
          • ✹ Воронки
          • ✹ Держатели телефонов и планшетов
          • ✹ Канистры для топлива
          • ✹ Пакеты для шин
          • ✹ Провода стартовые
          • ✹ Резинки багажные
          • ✹ Ремни багажные
          • ✹ Салфетки и губки
          • ✹ Тросы буксировочные
          • ✹ Удобства в автомобиле
          • ✹ Щетки стеклоочистителя
        • ✹ Домкраты
          • ✹ Домкраты гидравлические бутылочные
          • ✹ Домкраты гидравлические подкатные
          • ✹ Домкраты механические бутылочные
          • ✹ Домкраты реечные
          • ✹ Домкраты ромбовые
          • ✹ Домкраты электрогидравлические
        • ✹ Компрессоры автомобильные
        • ✹ Лебедки автомобильные
        • ✹ Масленки
        • ✹ Мебель гаражная
        • ✹ Насосы гидравлические
        • ✹ Пневмоинструмент
          • ✹ Гайковерты пневматические
          • ✹ Дрели пневматические
          • ✹ Заклепочники пневматические
          • ✹ Краскораспылители
          • ✹ Молотки пневматические
          • ✹ Нейлеры пневматические
          • ✹ Пистолеты пневматические
          • ✹ Пневмоинструмент (аксессуары)
          • ✹ Степлеры пневматические
          • ✹ Трещотки пневматические
          • ✹ Хоппер ковши
          • ✹ Шлифовальные машины
          • ✹ Шуруповерты пневматические
        • ✹ Поддоны для сбора масла
        • ✹ Подставки под машину регулируемые
        • Показать все
        ✹ Измерительный инструмент
        • ✹ Гидроуровни
        • ✹ Дальномеры
        • ✹ Измерительные колеса
        • ✹ Линейки
        • ✹ Микрометры
        • ✹ Рулетки
        • ✹ Рулетки геодезические
        • ✹ Угольники
        • ✹ Уровни
          • ✹ Уровни алюминиевые
          • ✹ Уровни пластмассовые
        • ✹ Уровни лазерные
          • ✹ Аксессуары для лазерных уровней
        • Показать все
        ✹ Крепежный инструмент
        • ✹ Гвозди для мебельного степлера
        • ✹ Дюбели
        • ✹ Дюбель-гвозди
        • ✹ Заклепки
        • ✹ Заклепочники
        • ✹ Крепеж перфорированный
          • ✹ Анкеры регулируемые
          • ✹ Кляймеры
          • ✹ Крабы соединительные
          • ✹ Ленты
          • ✹ Мебельный крепеж
          • ✹ Опоры бруса
          • ✹ Пластины
          • ✹ Подвесы
          • ✹ Проушины прямы
          • ✹ Проушины угловые
          • ✹ Уголки
        • ✹ Кронштейны
          • ✹ Кронштейны декоративные
          • ✹ Кронштейны угловые
          • ✹ Кронштейны усиленные
        • ✹ Наборы крепежных изделий
        • ✹ Проволока
          • ✹ Проволока из нержавеющей стали
          • ✹ Проволока с ПВХ покрытием
          • ✹ Проволока стальная оцинкованная
        • ✹ Саморезы
        • Показать все
        ✹ Отделочный инструмент
        • ✹ Аксессуары для плиткорезов
        • ✹ Валики
          • ✹ Бюгели
          • ✹ Валики игольчатые
          • ✹ Валики прижимные
          • ✹ Валики с ручкой
          • ✹ Шубки для валиков
        • ✹ Ведра строительные
        • ✹ Гладилки
        • ✹ Захваты строительные
        • ✹ Инструмент для затирки швов
        • ✹ Инструмент для нанесения декоративных покрытий
        • ✹ Инструмент по газо и пенобетону
        • ✹ Инструмент по гипсокартону
        • ✹ Карандаши строительные
        • Показать все
        ✹ Прочий инструмент
        • ✹ Горелки газовые
        • ✹ Замки
          • ✹ Навесные
          • ✹ Накладные и врезные
          • ✹ Тросовые и цепные
        • ✹ Изделия канатно-веревочные
          • ✹ Веревки
          • ✹ Канаты
          • ✹ Наборы шпагатов
          • ✹ Нити
          • ✹ Фалы
          • ✹ Шнуры
          • ✹ Шпагаты
        • ✹ Инструмент для пайки
          • ✹ Выжигатели по дереву
          • ✹ Материалы и принадлежности для пайки
          • ✹ Наборы для пайки
          • ✹ Наборы пинцетов
          • ✹ Пасты
          • ✹ Паяльники электрические
          • ✹ Припой
        • ✹ Инструмент для прочистки труб
        • ✹ Клеевые пистолеты
        • ✹ Клеевые стержни
        • ✹ Лампы паяльные, керосиновые
        • ✹ Лестницы
        • ✹ Лупы
        • Показать все
        ✹ Режущий инструмент
        • ✹ Болторезы и труборезы
          • ✹ Болторезы
          • ✹ Труборезы
        • ✹ Буры и насадки для перфоратора
          • ✹ Буры
          • ✹ Коронки
          • ✹ Насадки
        • ✹ Диски алмазные отрезные
        • ✹ Диски пильные
        • ✹ Диски универсальные
        • ✹ Круги и диски абразивные
          • ✹ Круги абразивные на ворсовой подложке
          • ✹ Круги и диски полировальные
          • ✹ Круги лепестковые радиальные (с оправкой)
          • ✹ Круги лепестковые торцевые
          • ✹ Круги отрезные и зачистные армированные
          • ✹ Круги шлифовальные гибкие
          • ✹ Круги шлифовальные для точила
          • ✹ Треугольники абразивные на ворсовой подложке
        • ✹ Ленты абразивные (для шлифмашин)
        • ✹ Насадки для многофункционального инструмента (МФИ)
        • ✹ Ножи
          • ✹ Лезвия для ножей
          • ✹ Ножи для резки напольных покрытий
          • ✹ Ножи для резки обоев
          • ✹ Ножи для резки теплоизоляции
          • ✹ Ножи кухонные
          • ✹ Ножи строительные
          • ✹ Ножи туристические
        • ✹ Ножи для электрических рубанков
        • Показать все
        ✹ Силовое оборудование
        • ✹ Аккумуляторный инструмент
          • ✹ Батареи аккумуляторные
          • ✹ Гайковерты ударные аккумуляторные
          • ✹ Дрели-шуруповерты аккумуляторные
          • ✹ Зарядные устройства
          • ✹ Лобзики аккумуляторные
          • ✹ Машинки для укладки плитки
          • ✹ МФИ аккумуляторные
          • ✹ Отвертки аккумуляторные
          • ✹ Перфораторы аккумуляторные
          • ✹ Сабельные пилы аккумуляторные
          • ✹ УШМ аккумуляторные
          • ✹ Циркулярные пилы аккумуляторные
          • ✹ Шлифовальные машины аккумуляторные
        • ✹ Аксессуары для бензорезов
        • ✹ Аксессуары для бетоносмесителей
          • ✹ Венцы
          • ✹ Ремни
          • ✹ Чехлы
          • ✹ Шестерни
        • ✹ Аксессуары для виброплит
        • ✹ Аксессуары для генераторов
        • ✹ Аксессуары для измельчителей садовых
          • ✹ Ножи сменные
        • ✹ Аксессуары для моечных машин высокого давления
        • ✹ Аксессуары для мотобуров
          • ✹ Удлинители для шнеков
          • ✹ Шнеки
        • ✹ Аксессуары для насосов
        • ✹ Аксессуары для сварки
          • ✹ Горелки сварочные
          • ✹ Держатели электродов
          • ✹ Клеммы
          • ✹ Наконечники токосъемные
          • ✹ Подающие ролики
          • ✹ Сопла газовые
          • ✹ Фиксаторы магнитные
          • ✹ Цангодержатели
          • ✹ Электроды
        • Показать все
        ✹ Слесарный инструмент
        • ✹ Биты
          • ✹ Адаптеры и переходники
          • ✹ Биты наборы
          • ✹ Биты с торцевыми головками
        • ✹ Бокорезы, кусачки
        • ✹ Воротки, удлинители, переходники
          • ✹ Воротки
          • ✹ Переходники
          • ✹ Шарниры карданные
        • ✹ Выколотки
        • ✹ Головки сменные
          • ✹ Головки многоразмерные
          • ✹ Головки с битой
          • ✹ Головки свечные
          • ✹ Головки торцевые
          • ✹ Головки ударные
          • ✹ Головки удлиненные
        • ✹ Длинногубцы
          • ✹ Длинногубцы изогнутые
          • ✹ Длинногубцы прямые
          • ✹ Длинногубцы, двойной рычажный механизм
        • ✹ Зажимы с фиксатором
        • ✹ Зубила
        • ✹ Инструменты для зачистки и обжима
        • ✹ Киянки
          • ✹ Киянки деревянные
          • ✹ Киянки резиновые
        • Показать все
        ✹ Столярный инструмент
        • ✹ Верстаки
        • ✹ Долота и стамески
          • ✹ Долота-стамески
          • ✹ Долота-стамески наборы
          • ✹ Стамески
          • ✹ Стамески наборы
        • ✹ Кирки
        • ✹ Ломы и гвоздодеры
          • ✹ Гвоздодеры
          • ✹ Ломы строительные
        • ✹ Ножовки
          • ✹ Ножовки по гипсокартону
          • ✹ Ножовки по дереву
          • ✹ Ножовки по пенобетону
        • ✹ Пилы
        • ✹ Резцы по дереву
        • ✹ Струбцины
          • ✹ Струбцины F-образные
          • ✹ Струбцины G-образные
          • ✹ Струбцины клещеобразные
          • ✹ Струбцины ленточные
          • ✹ Струбцины угловые
          • ✹ Стурбцины быстрозажимные
        • ✹ Стусла
          • ✹ Пилы для стусла
          • ✹ Полотна для прецизионного стусла
          • ✹ Стусла пластиковые
          • ✹ Стусла прецизионные
        • ✹ Топоры и колуны
          • ✹ Колуны
          • ✹ Рукоятки для колунов
          • ✹ Топорища
          • ✹ Топоры
      • ✹ Комплектующие для кухни
        ✹ Бокалодержатели ✹ Выкатные корзины
        ✹ Лотки для столовых приборов ✹ Сушки для посуды
      • ✹ Товары для дома
        ✹ Декор для дома
        • Вазы
        • Предметы декора для интерьера
          • Фоторамки
          • Шкатулки и держатели для украшений
        • ✹ Аромадиффузоры и свечи
        • ✹ Искусственные цветы и сухоцветы
        • ✹ Часы
        ✹ Домашнее хранение
        • ✹ Пластиковые короба и корзины
      • ✹ Мебельная фурнитура
        ✹ Амортизаторы и толкатели ✹ Крепежная фурнитура
        • ✹ Кронштейны для полок
        ✹ Крючки мебельные ✹ Мебельные замки
        ✹ Навесы мебельные ✹ Направляющие мебельные ✹ Опоры для столов ✹ Опоры колесные
        ✹ Опоры мебельные ✹ Петли мебельные
        • ✹ Петли для стекла
        • ✹ Петли карточные
        • ✹ Петли мебельные четырехшарнирные
        • ✹ Петли секретерная
        ✹ Подъемные механизмы ✹ Ручки мебельные
        • ✹ Ручки мебельные-кнопки
      Каталог Поиск Корзина Корзина 00.00 р. Избранное Войти
      • WhatsApp
      Авторизация
      Забыли пароль?
      Регистрация

      Хеттих/Quadro You V6 Push to Open M комплект направл 100% выдвиж 300мм, 30кг (EB21)/9256929

      • Главная
      • LV
        • *MFT
        • *МФК
        • 510
        • 531
        • 547
        • 571
        • 599
        • 79
        • 81
        • @Металлист
        • LV
        • OLD-АРХИВ
        • VR1
        • VR1-ТРУБЫ PE-XA СШИТЫЙ ПОЛИЭТИЛЕН
        • VR10-
        • VR15
        • VR3-Мебельная фурнитура
        • VR3-Товары для дома
        • VR5
        • VR6
        • Выдвижные корзины для кухни
        • Газовые лифты
        • Дверная фурнитура
        • Замки для мебели
        • Инструменты
        • Каталог
        • Комплектующие для кухни
        • Крепежная фурнитура
        • Кухонные аксессуары
        • Мебельная фурнитура
        • Мебельные крючки
        • Мебельные опоры
        • Мебельные петли
        • Мебельные ручки
        • Мерч и рекламная продукция
        • Навесы для шкафов
        • Основная
        • пет
        • Поддоны для выдвижных ящиков и органайзеры
        • Полкодержатели
        • Садовый инвентарь
        • Системы выдвижения
        • Системы отталкивания и демпфирования
        • Скобяные изделия
        • СОЗДАТЬ
        • Сушки для посуды
        • Товары для дома
        • Трубы и штангодержатели
        • ✹ Инструменты
        • ✹ Комплектующие для кухни
        • ✹ Мебельная фурнитура
        • ✹ Отопление
        • ✹ Садовый инвентарь
        • ✹ Товары для дома
        • ✹ ТОВАРЫ МАРКЕТПЛЕЙСА
        • ✹ Дверная фурнитура
        • Torg
      • Раздел: 8. Системы выдвижения
        • Раздел: 1. Лицевая фурнитура
        • Раздел: 10. Опоры мебельные
        • Раздел: 11. Комплектующие для изготовления столов
        • Раздел: 12. Кроватные основания и комплектующие
        • Раздел: 13. Клей
        • Раздел: 14. Кромочные материалы
        • Раздел: 15. Пластики HPL
        • Раздел: 16. Плитные материалы
        • Раздел: 17. Фасады
        • Раздел: 18. Рамочный профиль для фасадов
        • Раздел: 19. Замки для мебели
        • Раздел: 2. Освещение и Электрокомпоненты
        • Раздел: 20. Крепежная и соединительная фурнитура
        • Раздел: 21. Инструменты и оборудование
        • Раздел: 22. Трубы и элементы крепления
        • Раздел: 23. Упаковочный материал
        • Раздел: 24. Реставрационные материалы
        • Раздел: 25. Механизмы трансформации
        • Раздел: 26. Аксессуары для ванных комнат
        • Раздел: 27. Товары для сада и отдыха
        • Раздел: 28. Декор
        • Раздел: 29. Рекламная продукция
        • Раздел: 3. Гардеробные системы и системы хранения
        • Раздел: 4. Столешницы и стеновые панели
        • Раздел: 5. Кухонные мойки и смесители
        • Раздел: 6. Кухонное наполнение и аксессуары
        • Раздел: 7. Механизмы для открывания фасадов
        • Раздел: 8. Системы выдвижения
        • Раздел: 9. Шкафные системы: раздвижные и складные двери
      • Раздел: Направляющие
        • Раздел: Выдвижные ящики
        • Раздел: Металлобоксы
        • Раздел: Направляющие
      • Раздел: Направляющие скрытого монтажа
        • Раздел: Направляющие скрытого монтажа
        • Раздел: Пластиковые направляющие
        • Раздел: Роликовые направляющие
        • Раздел: Шариковые направляющие
      • Хеттих/Quadro You V6 Push to Open M комплект направл 100% выдвиж 300мм, 30кг (EB21)/9256929
      Хеттих/Quadro You V6 Push to Open M комплект направл 100% выдвиж 300мм, 30кг (EB21)/9256929
      Хеттих/Quadro You V6 Push to Open M комплект направл 100% выдвиж 300мм, 30кг (EB21)/9256929 0 3262.97 р. 3559.61 р.
      Хеттих/Quadro You V6 Push to Open M комплект направл 100% выдвиж 300мм, 30кг (EB21)/9256929
      Хеттих/Quadro You V6 Push to Open M комплект направл 100% выдвиж 300мм, 30кг (EB21)/9256929
      Хеттих/Quadro You V6 Push to Open M комплект направл 100% выдвиж 300мм, 30кг (EB21)/9256929
      Хеттих/Quadro You V6 Push to Open M комплект направл 100% выдвиж 300мм, 30кг (EB21)/9256929
      Хеттих/Quadro You V6 Push to Open M комплект направл 100% выдвиж 300мм, 30кг (EB21)/9256929
      Хеттих/Quadro You V6 Push to Open M комплект направл 100% выдвиж 300мм, 30кг (EB21)/9256929
      Хеттих/Quadro You V6 Push to Open M комплект направл 100% выдвиж 300мм, 30кг (EB21)/9256929
      Хеттих/Quadro You V6 Push to Open M комплект направл 100% выдвиж 300мм, 30кг (EB21)/9256929
      Хеттих/Quadro You V6 Push to Open M комплект направл 100% выдвиж 300мм, 30кг (EB21)/9256929
      Хеттих/Quadro You V6 Push to Open M комплект направл 100% выдвиж 300мм, 30кг (EB21)/9256929
      Хеттих/Quadro You V6 Push to Open M комплект направл 100% выдвиж 300мм, 30кг (EB21)/9256929
      Хеттих/Quadro You V6 Push to Open M комплект направл 100% выдвиж 300мм, 30кг (EB21)/9256929
      Хеттих/Quadro You V6 Push to Open M комплект направл 100% выдвиж 300мм, 30кг (EB21)/9256929
      Нет в наличии Код товара: LV-97314
      Hettich Производитель

      3262.97 р. 3559.61 р. экономия 296.63 р.

      Нашли дешевле?
      ₽ Покупка в кредит
      от 182.39 р. в месяц
      Информация о доставке
      Краткое описание

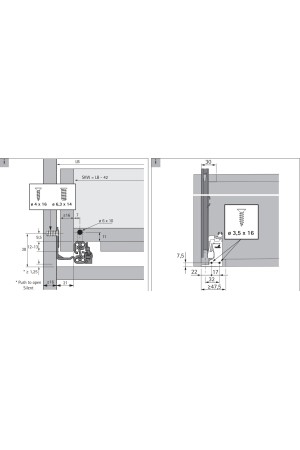
      Комплект направляющих для деревянных ящиков с фиксатором или для выдвижных ящиков AvanTech YOU.
      Встроенный механизм Push to open открывает ящик самостоятельно и практически бесшумно, достаточно легкого нажатия.
      Регулировка по высоте без инструмента.
      Материал: Оцинкованная сталь

      Состав комплекта:
      Направляющие Quadro YOU, левая и правая

      Для установки и коректной работы направляющих, приобретайте ОТДЕЛЬНО:
      Фиксаторы для использования на деревянном ящике - арт. Лавра 97194

      Поделиться
      Поделиться
      Нашли дешевле?

      Если у конкурента цена ниже — сделаем скидку! Промокод отправим на телефон или электронную почту.

      Введите адрес доставки
      Отзывы 0
      • На данный товар ещё нет отзывов.
      Войдите или зарегистрируйтесь чтобы оставить отзыв
      Вопросы и ответы 0
      • Еще не было вопросов
      Задать вопрос
      Нажимая на кнопку «Отправить вопрос», Вы даете согласие на обработку персональных данных.
      Посудосушитель 600мм хром с рамой и поддоном (Вариант 3) 256-16E Kalibra
      Посудосушитель 600мм хром с рамой и поддоном (Вариант 3) 256-16E Kalibra
      Посудосушитель 600мм хром с рамой и поддоном (Вариант 3) 256-16E Kalibra
      Посудосушитель 600мм хром с рамой и поддоном (Вариант 3) 256-16E Kalibra
      На складе Код товара: LV-14081 Посудосушитель 600мм хром с рамой и поддоном (Вариант 3) 256-16E Kalibra

      -8 %2082.67 р. 2256.23 р.

      посудосушитель в нижнюю базу 800мм, доводчик, поддон, ГРАФИТ, Боярд / KRS06/1/3/800/GRPH
      посудосушитель в нижнюю базу 800мм, доводчик, поддон, ГРАФИТ, Боярд / KRS06/1/3/800/GRPH
      посудосушитель в нижнюю базу 800мм, доводчик, поддон, ГРАФИТ, Боярд / KRS06/1/3/800/GRPH
      посудосушитель в нижнюю базу 800мм, доводчик, поддон, ГРАФИТ, Боярд / KRS06/1/3/800/GRPH
      посудосушитель в нижнюю базу 800мм, доводчик, поддон, ГРАФИТ, Боярд / KRS06/1/3/800/GRPH
      посудосушитель в нижнюю базу 800мм, доводчик, поддон, ГРАФИТ, Боярд / KRS06/1/3/800/GRPH
      На складе Код товара: LV-725334 посудосушитель в нижнюю базу 800мм, доводчик, поддон, ГРАФИТ, Боярд / KRS06/1/3/800/GRPH

      -8 %6715.87 р. 7326.41 р.

      Супер SALE
      Brass 2005 0080 BB крючок мебельный, матовое золото На складе Код товара: LV-07251-1 Brass 2005 0080 BB крючок мебельный, матовое золото

      -8 %1295.23 р. 1403.17 р.

      Крючок мебельный двухрожковый старое серебро 748MP14 Brass Нет в наличии Код товара: LV-07197 Крючок мебельный двухрожковый старое серебро 748MP14 Brass

      -8 %1758.28 р. 1904.80 р.

      Ручка мебельная скоба 320мм состаренная латунь 8237 0320 ABM Brass Нет в наличии Код товара: LV-519075 Ручка мебельная скоба 320мм состаренная латунь 8237 0320 ABM Brass

      -8 %1390.70 р. 1506.60 р.

      Бутылочница 150мм Elegance левая с доводчиком и держателем для полотенец дно ДСП БЕЗ направляющих сталь 549.35.850 Hafele
      Бутылочница 150мм Elegance левая с доводчиком и держателем для полотенец дно ДСП БЕЗ направляющих сталь 549.35.850 Hafele
      Нет в наличии Код товара: LV-49873 Бутылочница 150мм Elegance левая с доводчиком и держателем для полотенец дно ДСП БЕЗ направляющих сталь 549.35.850 Hafele

      -4 %12717.20 р. 13295.25 р.

      Ключ мебельный старая бронза 15.510.42.04 Brass Нет в наличии Код товара: LV-01058 Ключ мебельный старая бронза 15.510.42.04 Brass

      -13 %263.74 р. 304.32 р.

      Brass ключ мебельный 5002-66/35 ,оксидированный чёрный Нет в наличии Код товара: LV-01066 Brass ключ мебельный 5002-66/35 ,оксидированный чёрный

      -13 %130.07 р. 150.08 р.

      Ручка мебельная скоба Royal-1 96мм белая с золотом GTV
      Ручка мебельная скоба Royal-1 96мм белая с золотом GTV
      На складе Код товара: LV-19981 Ручка мебельная скоба Royal-1 96мм белая с золотом GTV

      -13 %224.68 р. 259.25 р.

      бутылочница 200мм (160*480*470), доводчик, 2 яруса, хром (аналог 25270)
      бутылочница 200мм (160*480*470), доводчик, 2 яруса, хром (аналог 25270)
      Нет в наличии Код товара: LV-25848 бутылочница 200мм (160*480*470), доводчик, 2 яруса, хром (аналог 25270)

      -4 %12814.67 р. 13397.16 р.

      Посудосушитель 900мм нержавеющая сталь с рамой и поддоном (Вариант 3) 690-16N Kalibra
      Посудосушитель 900мм нержавеющая сталь с рамой и поддоном (Вариант 3) 690-16N Kalibra
      Посудосушитель 900мм нержавеющая сталь с рамой и поддоном (Вариант 3) 690-16N Kalibra
      Посудосушитель 900мм нержавеющая сталь с рамой и поддоном (Вариант 3) 690-16N Kalibra
      На складе Код товара: LV-14093 Посудосушитель 900мм нержавеющая сталь с рамой и поддоном (Вариант 3) 690-16N Kalibra

      -8 %4459.47 р. 4864.87 р.

      посудосушитель в нижнюю базу 900мм, доводчик, поддон, ГРАФИТ, Боярд / KRS06/1/3/900/GRPH
      посудосушитель в нижнюю базу 900мм, доводчик, поддон, ГРАФИТ, Боярд / KRS06/1/3/900/GRPH
      посудосушитель в нижнюю базу 900мм, доводчик, поддон, ГРАФИТ, Боярд / KRS06/1/3/900/GRPH
      посудосушитель в нижнюю базу 900мм, доводчик, поддон, ГРАФИТ, Боярд / KRS06/1/3/900/GRPH
      посудосушитель в нижнюю базу 900мм, доводчик, поддон, ГРАФИТ, Боярд / KRS06/1/3/900/GRPH
      посудосушитель в нижнюю базу 900мм, доводчик, поддон, ГРАФИТ, Боярд / KRS06/1/3/900/GRPH
      На складе Код товара: LV-725335 посудосушитель в нижнюю базу 900мм, доводчик, поддон, ГРАФИТ, Боярд / KRS06/1/3/900/GRPH

      -8 %7249.78 р. 7908.85 р.

      Прямоугольный рейлинг дополнительный для ящика Innotech Atira 520мм левый серый 9195020 Hettich
      Прямоугольный рейлинг дополнительный для ящика Innotech Atira 520мм левый серый 9195020 Hettich
      Прямоугольный рейлинг дополнительный для ящика Innotech Atira 520мм левый серый 9195020 Hettich
      Нет в наличии Код товара: LV-97319 Прямоугольный рейлинг дополнительный для ящика Innotech Atira 520мм левый серый 9195020 Hettich

      -13 %472.50 р. 545.19 р.

      Посудосушитель 500мм хром с рамой и поддоном  (Вариант 3) 255-16E Kalibra
      Посудосушитель 500мм хром с рамой и поддоном  (Вариант 3) 255-16E Kalibra
      Посудосушитель 500мм хром с рамой и поддоном  (Вариант 3) 255-16E Kalibra
      Посудосушитель 500мм хром с рамой и поддоном  (Вариант 3) 255-16E Kalibra
      На складе Код товара: LV-14080 Посудосушитель 500мм хром с рамой и поддоном (Вариант 3) 255-16E Kalibra

      -8 %1826.99 р. 1979.24 р.

      Прямоугольный рейлинг дополнительный для ящика Innotech Atira 420мм левый серый 9195016 Hettich
      Прямоугольный рейлинг дополнительный для ящика Innotech Atira 420мм левый серый 9195016 Hettich
      Прямоугольный рейлинг дополнительный для ящика Innotech Atira 420мм левый серый 9195016 Hettich
      Нет в наличии Код товара: LV-97317 Прямоугольный рейлинг дополнительный для ящика Innotech Atira 420мм левый серый 9195016 Hettich

      -13 %448.84 р. 517.89 р.

      Прямоугольный рейлинг дополнительный для ящика Innotech Atira 350мм левый белый 9195028 Hettich
      Прямоугольный рейлинг дополнительный для ящика Innotech Atira 350мм левый белый 9195028 Hettich
      Прямоугольный рейлинг дополнительный для ящика Innotech Atira 350мм левый белый 9195028 Hettich
      Прямоугольный рейлинг дополнительный для ящика Innotech Atira 350мм левый белый 9195028 Hettich
      Нет в наличии Код товара: LV-97202 Прямоугольный рейлинг дополнительный для ящика Innotech Atira 350мм левый белый 9195028 Hettich

      -13 %636.26 р. 734.15 р.

      Firmax Smartline пенал выдвижной * направляющие к пеналу в базу 600мм, H=1765мм/FRM1513.60S/6K Нет в наличии Код товара: LV-25814-2 Firmax Smartline пенал выдвижной * направляющие к пеналу в базу 600мм, H=1765мм/FRM1513.60S/6K

      -8 %8891.75 р. 9700.09 р.

      Хеттих/Wing Line L* комплект фурнитуры 12кг Light, самозакрывание, серый,правый/9339389 Нет в наличии Код товара: LV-97763 Хеттих/Wing Line L* комплект фурнитуры 12кг Light, самозакрывание, серый,правый/9339389

      -8 %2245.23 р. 2449.34 р.

      Полкодержатель с присоской прямой SS006
      Полкодержатель с присоской прямой SS006
      На складе Код товара: LV-13045 Полкодержатель с присоской прямой SS006

      -19 %3.33 р. 4.10 р.

      Посудосушитель 500мм хром с рамой и поддоном (Вариант 3)
      Посудосушитель 500мм хром с рамой и поддоном (Вариант 3)
      Посудосушитель 500мм хром с рамой и поддоном (Вариант 3)
      Посудосушитель 500мм хром с рамой и поддоном (Вариант 3)
      Посудосушитель 500мм хром с рамой и поддоном (Вариант 3)
      На складе Код товара: LV-14011 Посудосушитель 500мм хром с рамой и поддоном (Вариант 3)

      -14 %720.94 р. 841.09 р.

      Хеттих/комплект рамы BANIO, пластик, темно-серый/9207259
      Хеттих/комплект рамы BANIO, пластик, темно-серый/9207259
      Хеттих/комплект рамы BANIO, пластик, темно-серый/9207259
      Хеттих/комплект рамы BANIO, пластик, темно-серый/9207259
      Хеттих/комплект рамы BANIO, пластик, темно-серый/9207259
      Нет в наличии Код товара: LV-97618 Хеттих/комплект рамы BANIO, пластик, темно-серый/9207259

      -8 %5932.09 р. 6471.37 р.

      Бутылочница 200мм универсальная с доводчиком хром WTJ 003B-1 AMIX
      Бутылочница 200мм универсальная с доводчиком хром WTJ 003B-1 AMIX
      Нет в наличии Код товара: LV-25184 Бутылочница 200мм универсальная с доводчиком хром WTJ 003B-1 AMIX

      -8 %2521.08 р. 2750.27 р.

      шайба гровер DIN 127 М  6 цинк На складе Код товара: LV-26403 шайба гровер DIN 127 М 6 цинк

      -19 %0.12 р. 0.14 р.

      Хеттих/Quadro You V6 Silent System комплект направл 100% выдвиж 600мм (ЕВ 21)/9256896 Нет в наличии Код товара: LV-97704 Хеттих/Quadro You V6 Silent System комплект направл 100% выдвиж 600мм (ЕВ 21)/9256896

      -8 %3323.94 р. 3626.11 р.

      шайба под винт D4мм серая На складе Код товара: LV-19215 шайба под винт D4мм серая

      -19 %0.16 р. 0.19 р.

      Хеттих/AvanTech You ящик 100% выдвижения 187*450мм, антрацит, БЕЗ направл без соединитетлей /9353443
      Хеттих/AvanTech You ящик 100% выдвижения 187*450мм, антрацит, БЕЗ направл без соединитетлей /9353443
      Хеттих/AvanTech You ящик 100% выдвижения 187*450мм, антрацит, БЕЗ направл без соединитетлей /9353443
      Нет в наличии Код товара: LV-97785 Хеттих/AvanTech You ящик 100% выдвижения 187*450мм, антрацит, БЕЗ направл без соединитетлей /9353443

      -8 %4355.70 р. 4751.68 р.

      Бутылочница 150мм Crystal/Elegance правая с доводчиком БЕЗ направляющих сталь 549.35.810 Hafele
      Бутылочница 150мм Crystal/Elegance правая с доводчиком БЕЗ направляющих сталь 549.35.810 Hafele
      Нет в наличии Код товара: LV-49879 Бутылочница 150мм Crystal/Elegance правая с доводчиком БЕЗ направляющих сталь 549.35.810 Hafele

      -8 %6160.96 р. 6721.04 р.

      полкодержатель P300BL.4 (15)
      полкодержатель P300BL.4 (15)
      полкодержатель P300BL.4 (15)
      Нет в наличии Код товара: LV-713159 полкодержатель P300BL.4 (15)

      -8 %1370.11 р. 1484.29 р.

      Хеттих/AvanTech You* задняя стенка 101*2000, антрацит (1) /9257310 Нет в наличии Код товара: LV-97560 Хеттих/AvanTech You* задняя стенка 101*2000, антрацит (1) /9257310

      -8 %8724.94 р. 9518.11 р.

      Бутылочница 150мм Crystal левая с доводчиком БЕЗ направляющих сталь 549.35.200 Hafele Нет в наличии Код товара: LV-49825 Бутылочница 150мм Crystal левая с доводчиком БЕЗ направляющих сталь 549.35.200 Hafele

      -4 %11429.51 р. 11949.03 р.

      Хеттих/AvanTech You* направляющие ACTRO You Silent System 450мм правая, 40кг/9318178 Нет в наличии Код товара: LV-97793-1 Хеттих/AvanTech You* направляющие ACTRO You Silent System 450мм правая, 40кг/9318178

      -8 %1954.73 р. 2117.62 р.

      полкодержатель P300W.4 (10)
      полкодержатель P300W.4 (10)
      полкодержатель P300W.4 (10)
      Нет в наличии Код товара: LV-713161 полкодержатель P300W.4 (10)

      -8 %1438.52 р. 1558.40 р.

      Хеттих/OrgaTray 440 держатель для специй, 10 баночек d 53мм, бук лакированный / 44934 Нет в наличии Код товара: LV-37793-1 Хеттих/OrgaTray 440 держатель для специй, 10 баночек d 53мм, бук лакированный / 44934

      -8 %4958.07 р. 5408.81 р.

      Хеттих/AvanTech You ящик 100% выдвижения 251*450мм, серебристый,БЕЗ направл, с соединит new /9381984
      Хеттих/AvanTech You ящик 100% выдвижения 251*450мм, серебристый,БЕЗ направл, с соединит new /9381984
      Нет в наличии Код товара: LV-97109-2 Хеттих/AvanTech You ящик 100% выдвижения 251*450мм, серебристый,БЕЗ направл, с соединит new /9381984

      -8 %7140.85 р. 7790.02 р.

      полкодержатель угловой никель со штырем 1000шт/5000шт
      полкодержатель угловой никель со штырем 1000шт/5000шт
      На складе Код товара: LV-13010-1 полкодержатель угловой никель со штырем 1000шт/5000шт

      -19 %3.16 р. 3.89 р.

      Винт мебельный оцинкованный M4x23мм 022.35.234 Hafele
      Винт мебельный оцинкованный M4x23мм 022.35.234 Hafele
      Нет в наличии Код товара: LV-49852 Винт мебельный оцинкованный M4x23мм 022.35.234 Hafele

      -19 %4.94 р. 6.08 р.

      болт DIN 603 6*60 полукруглая головка, кв подг, цинк Нет в наличии Код товара: LV-26149 болт DIN 603 6*60 полукруглая головка, кв подг, цинк

      -19 %5.42 р. 6.67 р.

      Супер SALE
      посудосушитель 800мм, нержавеющая сталь, Боярд/SU08/800 На складе Код товара: LV-714100 посудосушитель 800мм, нержавеющая сталь, Боярд/SU08/800

      -8 %4510.14 р. 4920.16 р.

      Хеттих/Veosys монтажная планка крестовая 2мм, нержавеющая сталь (200)/ 9289609
      Хеттих/Veosys монтажная планка крестовая 2мм, нержавеющая сталь (200)/ 9289609
      Нет в наличии Код товара: LV-97653 Хеттих/Veosys монтажная планка крестовая 2мм, нержавеющая сталь (200)/ 9289609

      -19 %99.35 р. 122.27 р.

      уголок пластиковый GRANDIS 20*20 мм вишня (400) На складе Код товара: LV-13393 уголок пластиковый GRANDIS 20*20 мм вишня (400)

      -19 %5.01 р. 6.16 р.

      Передняя панель внутреннего ящика AvanTech You 139*2000мм белый 9257274 Hettich
      Передняя панель внутреннего ящика AvanTech You 139*2000мм белый 9257274 Hettich
      Передняя панель внутреннего ящика AvanTech You 139*2000мм белый 9257274 Hettich
      Нет в наличии Код товара: LV-97068 Передняя панель внутреннего ящика AvanTech You 139*2000мм белый 9257274 Hettich

      -4 %11787.47 р. 12323.26 р.

      Поперечный релинг OrgaStore 410 для ящиков InnoTech Atira 600мм белый 9194603 Hettich
      Поперечный релинг OrgaStore 410 для ящиков InnoTech Atira 600мм белый 9194603 Hettich
      Поперечный релинг OrgaStore 410 для ящиков InnoTech Atira 600мм белый 9194603 Hettich
      Нет в наличии Код товара: LV-37823 Поперечный релинг OrgaStore 410 для ящиков InnoTech Atira 600мм белый 9194603 Hettich

      -14 %1001.47 р. 1168.38 р.

      Тэги: Хеттих/Quadro You V6 Push to Open M комплект направл 100% выдвиж 300мм, 30кг (EB21)/9256929, LV-97314, Hettich, LV, Раздел: 8. Системы выдвижения, Раздел: Направляющие, Раздел: Направляющие скрытого монтажа

      Выберите обязательные опции

      Мы используем файлы cookie и другие средства сохранения предпочтений и анализа действий посетителей сайта. Подробнее в Условия соглашения. Нажмите «Принять», если даете согласие на это.

      Принять
      MFT24



      2025

      Поддержка
      • 8-800-700-65-88
      • Обратный звонок
        Заказать обратный звонок
        Нажимая на кнопку «Отправить», Вы даете согласие на обработку персональных данных.

      Мы работаем для вас ежедневно:

      ПН: 9:00 - 18:00

      ВТ: 9:00 - 18:00

      СР: 9:00 - 18:00

      ЧТ: 9:00 - 18:00

      ПТ: 9:00 - 18:00

      СБ: 9:00 - 18:00

      ВС: 9:00 - 18:00

      Без перерывов на обед и выходных дней!

      Электронная почта
      info@mft-group.ru
      Адрес магазина
      г.Москва Мкад 23км влд10
      Мы в сети
      Подписаться на рассылку за 100 бонусов

      Мы не будем присылать вам спам. Только скидки и выгодные предложения

      Нажимая на кнопку «Подписаться», Вы даете согласие на обработку персональных данных.
      MFT24

      , 2025

      Ваш город: Не определено
      Владивосток
      Волгоград
      Воронеж
      Екатеринбург
      Казань
      Красноярск
      Москва
      Нижний Новгород
      Новосибирск
      Омск
      Пермь
      Ростов-на-Дону
      Самара
      Санкт-Петербург
      Саратов
      Уфа
      Хабаровск
      Челябинск